Modifiez vos plans très rapidement avec votre conseiller Maisons lelièvre [+]
Maisons de plain-pied
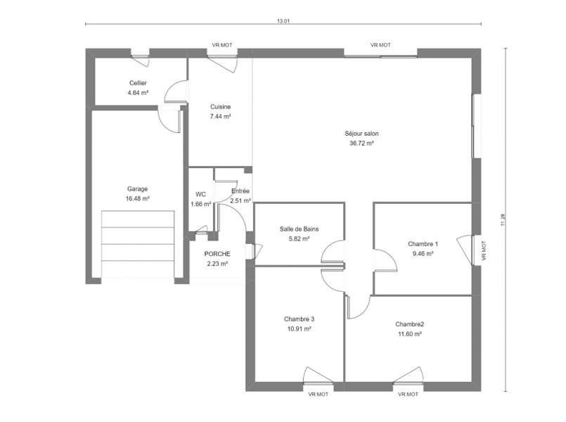
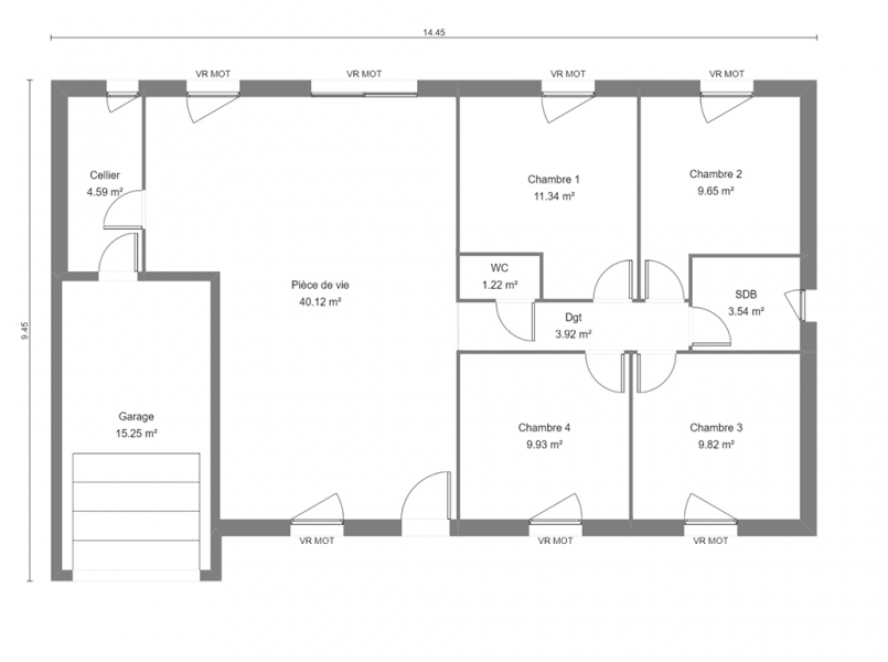
De belles surfaces et tout de plain-pied : ce plan de maison traditionnelle, en double L, s’articule autour de 2 espaces jardin et se prolonge d’un garage. Le plan vous réserve quelques surprises comme l’avancée en bow-window du salon-séjour qui privilégie la vue côté jardin. Bien-conçue, la maison DALEA réunit 3 chambres, dont une suite parentale, un deuxième toilette et une salle de bain dans l’une des ailes de la maison. La porte du garage est motorisée et télécommandée comme sur toutes nos maisons individuelles.
- Surface habitable : 109,73 m2
- Rez-de-chaussée : 109,73 m2
- Combles perdus
- Emprise au sol : 164,86 m2
- Maison de plain-pied
- Nombre de pièces : 5
- Chambres : 3
- Garage : 22,02 m2
- SdB / SdE : 2
- WC : 1
- Architecture classique
- Enduit 2 teintes au choix
- Box domotique Tahoma
Principes constructifs, équipes, éco-matériaux, finitions soignées, SAV et garanties de résultats, tout ne se vaut pas !
Plan de maison neuve et procédé constructif conformes à la RE 2020.
Toutes nos maisons neuves sont contrôlées en fin de chantier par un organisme accrédité COFRAC qui délivre une attestation thermique et un DPE certifié.
Parce que vous n’avez pas tous les mêmes besoins, ni les mêmes goûts, tous les plans de nos maisons sont modifiables. Vous pouvez choisir de les construire tels quels ou de vous en inspirer librement. Nous construisons également des maisons sur mesure : venez avec vos idées ou vos plans !
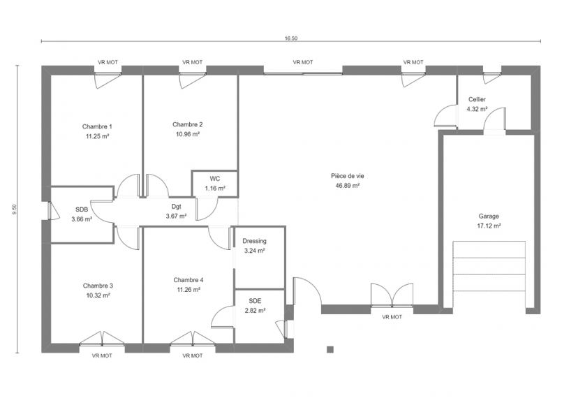
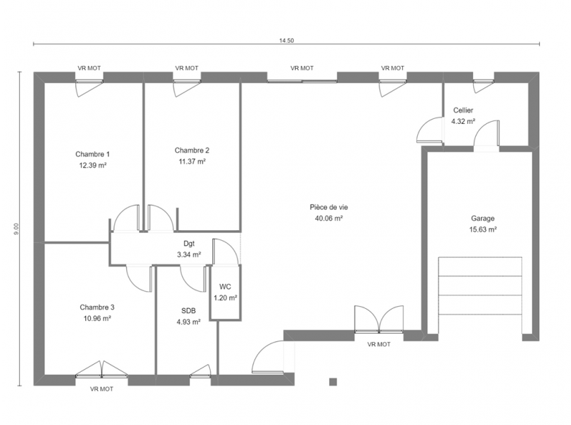
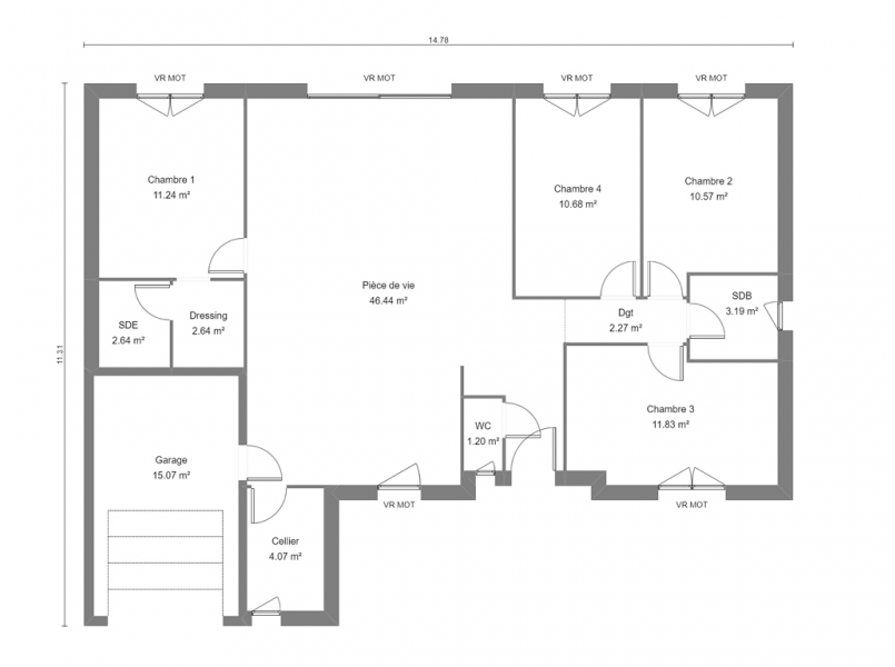
Des lignes sobres, une belle association d’enduits 2 teintes (n’oubliez pas que c’est vous qui les choisissez), cette maison contemporaine de plain-pied renouvelle ses classiques sans en avoir l’air. En y regardant de plus près, vous noterez les multiples jeux d’avancée et de retrait qui rythment les façades. Avez-vous remarqué les 3 hublots qui percent sa façade ? Cette maison neuve de plain-pied abrite 3 chambres dont 1 en suite parentale et un vaste salon/séjour de presque 40 m² qui s’ouvre largement sur le jardin grâce à 2 grandes baies vitrées coulissantes. La cuisine, 15 m² décloisonnés, s’inscrit dans le prolongement de la pièce vie.
- Surface habitable : 121,58 m2
- Rez-de-chaussée : 121,58 m2
- Combles perdus
- Emprise au sol : 170,92 m2
- Maison de plain-pied
- Nombre de pièces : 5
- Chambres : 3
- Garage : 23,96 m2
- SdB / SdE : 2
- WC : 2
- Toit plat
- Porche
- Architecture moderne
- Enduit 2 teintes au choix
- Box domotique Tahoma
Principes constructifs, équipes, éco-matériaux, finitions soignées, SAV et garanties de résultats, tout ne se vaut pas !
Plan de maison neuve et procédé constructif conformes à la RE 2020.
Toutes nos maisons neuves sont contrôlées en fin de chantier par un organisme accrédité COFRAC qui délivre une attestation thermique et un DPE certifié.
Parce que vous n’avez pas tous les mêmes besoins, ni les mêmes goûts, tous les plans de nos maisons sont modifiables. Vous pouvez choisir de les construire tels quels ou de vous en inspirer librement. Nous construisons également des maisons sur mesure : venez avec vos idées ou vos plans !
Une élégance simple se dégage de cette maison contemporaine à toit plat. Les décrochés de façade sont soulignés par l’alternance des couleurs de ses enduits extérieurs. C’est vous bien-sûr qui choisissez les teintes qui vous conviennent. La ligne minimaliste du porche de l’entrée contribue à l’esprit d’épure qui sous-tend la conception de cette maison individuelle de plain-pied. La pièce de vie, 49 m², dispose d’une large baie vitrée de 3 m de large. Un couloir dessert les espaces cloisonnés : deux chambres, une salle de bain commune, un bureau, ainsi qu’une superbe suite parentale de 21 m², incluant un grand dressing et une salle d’eau privative. Ce plan de maison comme tous ceux des Maisons Lelièvre sont ajustables à votre budget et à vos besoins : plus grand, plus petit, différent… Les conseillers Maisons Lelièvre vous accompagnent dans la personnalisation des plans de votre future maison.
L’AVEZ VOUS NOTÉ ?
Suite parentale de 21 m²
Bureau pour le télétravail
Un cellier accessible par la cuisine et le garage
- Surface habitable : 114,63 m2
- Rez-de-chaussée : 114,63 m2
- Combles perdus
- Emprise au sol : 154,85 m2
- Maison de plain-pied
- Nombre de pièces : 4
- Chambres : 3
- Garage : 15,61 m2
- SdB / SdE : 2
- WC : 1
- Toit plat
- Porche
- Architecture moderne
- Enduit 2 teintes au choix
- Box domotique Tahoma
Principes constructifs, équipes, éco-matériaux, finitions soignées, SAV et garanties de résultats, tout ne se vaut pas !
Plan de maison neuve et procédé constructif conformes à la RE 2020.
Toutes nos maisons neuves sont contrôlées en fin de chantier par un organisme accrédité COFRAC qui délivre une attestation thermique et un DPE certifié.
Parce que vous n’avez pas tous les mêmes besoins, ni les mêmes goûts, tous les plans de nos maisons sont modifiables. Vous pouvez choisir de les construire tels quels ou de vous en inspirer librement. Nous construisons également des maisons sur mesure : venez avec vos idées ou vos plans !
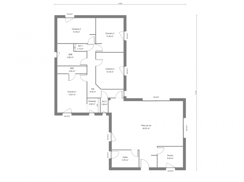
Le plan de cette maison de plain-pied témoigne tout à la fois d’une conception architecturale originale et d’un véritable sens pratique. Deux modules architecturaux, chacun couvert d’une toiture 4 pentes, font visuellement jonction dans un troisième espace à toit plat, le sas de l’entrée. Habillé par trois fenêtres aussi étroites qu’élancées, le sas de l’entrée s’invente une forte personnalité. L’aile gauche de la maison est réservée à la pièce de vie qui se prolonge sur une cuisine semi-ouverte, au total près de 49 m² pour vivre en commun ! Ces deux pièces s’enroulent autour d’un espace extérieur couvert d’environ 10 m², à investir comme un véritable jardin d’hiver abrité du vent ou une terrasse protégée des intempéries. L’aile droite de la maison, desservie par un couloir central, est dédiée aux 4 chambres, dont une grande suite parentale équipée d’un dressing et d’une salle d’eau, eux-mêmes clos par des portes à galandages pour éviter toute contrainte dans la disposition de votre mobilier.
L’AVEZ VOUS NOTÉ ?
Jardin d’hiver
Pièce de vie traversante de 49 m²
Suite parentale de 21 m²
Un cellier pour les rangements accessible par la cuisine et le garage
Garage intégré
- Surface habitable : 127,59 m2
- Rez-de-chaussée : 127,59 m2
- Combles perdus
- Emprise au sol : 178,50 m2
- Maison de plain-pied
- Nombre de pièces : 5
- Chambres : 4
- Garage : 13,99 m2
- SdB / SdE : 2
- WC : 1
- Toits 4 pentes
- Architecture moderne
- Enduit 2 teintes au choix
- Box domotique Tahoma
Principes constructifs, équipes, éco-matériaux, finitions soignées, SAV et garanties de résultats, tout ne se vaut pas !
Plan de maison neuve et procédé constructif conformes à la RE 2020.
Toutes nos maisons neuves sont contrôlées en fin de chantier par un organisme accrédité COFRAC qui délivre une attestation thermique et un DPE certifié.
Parce que vous n’avez pas tous les mêmes besoins, ni les mêmes goûts, tous les plans de nos maisons sont modifiables. Vous pouvez choisir de les construire tels quels ou de vous en inspirer librement. Nous construisons également des maisons sur mesure : venez avec vos idées ou vos plans !
Pétunia ou la réinvention du pavillon traditionnel. Encadré par deux structures à toits plats, le pavillon classique prend une tout autre allure. Le plan de cette maison a été largement inspiré par des demandes fréquentes de nos clients qui cherchaient un juste milieu entre architecture contemporaine et architecture traditionnelle. Une grande pièce de vie, 3 chambres et un bureau prennent place sur un peu plus de 114 m² habitables. Bien agencé et d’un prix accessible, ce modèle de maison individuelle de plain-pied se prête facilement à vos demandes de modifications. Côté chauffage, parmi les 3 solutions que nous proposons, l’installation d’un poêle à pellet est tout à fait pertinente pour cette maison neuve très bien isolée.
L’AVEZ VOUS NOTÉ ?
Pièce de vie traversante de 49,4 m²
Suite parentale de 21 m²
Possibilité de bureau pour le télétravail
Un cellier pour les rangements accessible par la cuisine et le garage
- Surface habitable : 114,56 m2
- Rez-de-chaussée : 114,56 m2
- Combles perdus
- Emprise au sol : 152,88 m2
- Maison de plain-pied
- Nombre de pièces : 4
- Chambres : 3
- Garage : 15,61 m2
- SdB / SdE : 2
- WC : 1
- Toit plat
- Architecture moderne
- Enduit 2 teintes au choix
- Box domotique Tahoma
Principes constructifs, équipes, éco-matériaux, finitions soignées, SAV et garanties de résultats, tout ne se vaut pas !
Plan de maison neuve et procédé constructif conformes à la RE 2020.
Toutes nos maisons neuves sont contrôlées en fin de chantier par un organisme accrédité COFRAC qui délivre une attestation thermique et un DPE certifié.
Parce que vous n’avez pas tous les mêmes besoins, ni les mêmes goûts, tous les plans de nos maisons sont modifiables. Vous pouvez choisir de les construire tels quels ou de vous en inspirer librement. Nous construisons également des maisons sur mesure : venez avec vos idées ou vos plans !
Compacte et économique, cette maison neuve ne fait toutefois aucune concession quand la qualité de son aménagement, de ses finitions et de sa construction. 87 m² habitables, 3 chambres, une belle pièce de vie et de nombreux espaces étudiés pour y aménager des placards. Le garage et le cellier sont bien-sûr inclus dans le prix initial, de même que toutes les prestations soignées des Maisons Lelièvre.
- Surface habitable : 86,93 m2
- Rez-de-chaussée : 86,93 m2
- Combles perdus
- Emprise au sol : 123,01 m2
- Maison de plain-pied
- Nombre de pièces : 4
- Chambres : 3
- Garage : 17,61 m2
- SdB / SdE : 1
- WC : 1
- Toits 2 pentes
- Architecture moderne
- Enduit 2 teintes au choix
- Box domotique Tahoma
Principes constructifs, équipes, éco-matériaux, finitions soignées, SAV et garanties de résultats, tout ne se vaut pas !
Plan de maison neuve et procédé constructif conformes à la RE 2020.
Toutes nos maisons neuves sont contrôlées en fin de chantier par un organisme accrédité COFRAC qui délivre une attestation thermique et un DPE certifié.
Parce que vous n’avez pas tous les mêmes besoins, ni les mêmes goûts, tous les plans de nos maisons sont modifiables. Vous pouvez choisir de les construire tels quels ou de vous en inspirer librement. Nous construisons également des maisons sur mesure : venez avec vos idées ou vos plans !
Le plan de cette maison, constitué de 2 blocs perpendiculaires reliés par un angle, dissocie nettement les espaces de vie communs des espaces de repos. 130 m² habitables de plain-pied, une belle pièce de vie ouverte, un bureau et 4 chambres, dont une équipée d’une salle d’eau privative et d’un dressing. Le charme de cette maison doit par ailleurs beaucoup à ses deux toits 4 pentes. C’est vous qui choisissez les 2 teintes de l’enduit. Le marquage au fer est compris dans le tarif. De niveau énergie positive et en avance sur les réglementations futures, cette maison consommera moins d’énergie qu’elle n’en produit !
- Surface habitable : 130,14 m2
- Rez-de-chaussée : 130,14 m2
- Combles perdus
- Emprise au sol : 153,84 m2
- Maison de plain-pied
- Nombre de pièces : 5
- Chambres : 4
- SdB / SdE : 2
- WC : 2
- Toits 4 pentes
- Architecture classique
- Enduit 2 teintes au choix
- Box domotique Tahoma
Principes constructifs, équipes, éco-matériaux, finitions soignées, SAV et garanties de résultats, tout ne se vaut pas !
Plan de maison neuve et procédé constructif conformes à la RE 2020.
Toutes nos maisons neuves sont contrôlées en fin de chantier par un organisme accrédité COFRAC qui délivre une attestation thermique et un DPE certifié.
Parce que vous n’avez pas tous les mêmes besoins, ni les mêmes goûts, tous les plans de nos maisons sont modifiables. Vous pouvez choisir de les construire tels quels ou de vous en inspirer librement. Nous construisons également des maisons sur mesure : venez avec vos idées ou vos plans !
Cette maison de plain-pied à toit plat, aussi accessible que contemporaine, comprend 3 chambres, une belle pièce de vie ouverte sur le jardin et un garage. Pour optimiser l’espace, les plans de cloisonnement ont déjà été étudiés pour que vous puissiez aménager de grands placards intégrés. Adapté aux situations mitoyennes rencontrées dans certains lotissements, ce modèle offre 84 m² habitables. Idéale pour une première acquisition ou un investissement locatif, cette maison bien conçue sera aisément valorisable en cas de revente. Son niveau énergie positive, la qualité de son bâti et de ses prestations en font un investissement constructif tant pour le présent que pour l’avenir.
- Surface habitable : 84,54 m2
- Rez-de-chaussée : 84,54 m2
- Combles perdus
- Emprise au sol : 118,15 m2
- Maison de plain-pied
- Nombre de pièces : 4
- Chambres : 3
- Garage : 15,77 m2
- SdB / SdE : 1
- WC : 1
- Toit plat
- Porche
- Architecture moderne
- Enduit 2 teintes au choix
- Box domotique Tahoma
Principes constructifs, équipes, éco-matériaux, finitions soignées, SAV et garanties de résultats, tout ne se vaut pas !
Plan de maison neuve et procédé constructif conformes à la RE 2020.
Toutes nos maisons neuves sont contrôlées en fin de chantier par un organisme accrédité COFRAC qui délivre une attestation thermique et un DPE certifié.
Parce que vous n’avez pas tous les mêmes besoins, ni les mêmes goûts, tous les plans de nos maisons sont modifiables. Vous pouvez choisir de les construire tels quels ou de vous en inspirer librement. Nous construisons également des maisons sur mesure : venez avec vos idées ou vos plans !
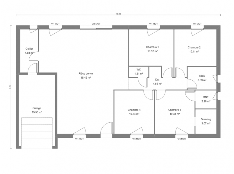
Les plans de la maison Iris présentent une forme originale, en V ouvert. La façade est égayée par un œil-de-bœuf en losange. Cette maison de plain-pied comprend un garage intégré, un cellier jouxtant la cuisine, une cuisine largement ouverte sur une pièce de vie de plus de 45 m². Les trois chambres sont regroupées, ainsi que la salle de bains et les toilettes, dans un espace bien isolé des espaces de jour.
- Surface habitable : 92,60 m2
- Rez-de-chaussée : 92,60 m2
- Combles perdus
- Emprise au sol : 128,43 m2
- Maison de plain-pied
- Nombre de pièces : 4
- Chambres : 3
- Garage : 16,63 m2
- SdB / SdE : 1
- WC : 1
- Toits 2 pentes
- Porche
- Architecture classique
- Enduit 2 teintes au choix
- Box domotique Tahoma
Principes constructifs, équipes, éco-matériaux, finitions soignées, SAV et garanties de résultats, tout ne se vaut pas !
Plan de maison neuve et procédé constructif conformes à la RE 2020.
Toutes nos maisons neuves sont contrôlées en fin de chantier par un organisme accrédité COFRAC qui délivre une attestation thermique et un DPE certifié.
Parce que vous n’avez pas tous les mêmes besoins, ni les mêmes goûts, tous les plans de nos maisons sont modifiables. Vous pouvez choisir de les construire tels quels ou de vous en inspirer librement. Nous construisons également des maisons sur mesure : venez avec vos idées ou vos plans !
Les plans de la maison Iris présentent une forme originale, en V ouvert. La façade est égayée par un œil-de-bœuf en losange. Cette maison de plain-pied comprend un garage intégré, un cellier jouxtant la cuisine, une cuisine largement ouverte sur une pièce de vie de plus de 45 m². Les trois chambres sont regroupées, ainsi que la salle de bains et les toilettes, dans un espace bien isolé des espaces de jour.
- Surface habitable : 103,05 m2
- Rez-de-chaussée : 103,05 m2
- Combles perdus
- Emprise au sol : 134,85 m2
- Maison de plain-pied
- Nombre de pièces : 5
- Chambres : 4
- Garage : 16,63 m2
- SdB / SdE : 1
- WC : 1
- Toits 2 pentes
- Porche
- Architecture classique
- Enduit 2 teintes au choix
- Box domotique Tahoma
Principes constructifs, équipes, éco-matériaux, finitions soignées, SAV et garanties de résultats, tout ne se vaut pas !
Plan de maison neuve et procédé constructif conformes à la RE 2020.
Toutes nos maisons neuves sont contrôlées en fin de chantier par un organisme accrédité COFRAC qui délivre une attestation thermique et un DPE certifié.
Parce que vous n’avez pas tous les mêmes besoins, ni les mêmes goûts, tous les plans de nos maisons sont modifiables. Vous pouvez choisir de les construire tels quels ou de vous en inspirer librement. Nous construisons également des maisons sur mesure : venez avec vos idées ou vos plans !
Compacte et économique, la maison Erica s’adapte à tous les terrains. Cette maison neuve de plain-pied, avec garage intégré, a beaucoup d’atouts pour séduire de jeunes ménages et les investisseurs locatifs. Un grand salon - séjour - cuisine de 41 m², trois chambres et une salle de bains. Vous pouvez personnaliser les plans avec votre conseiller Maisons Lelièvre et choisir, par exemple, de supprimer une chambre pour agrandir l’espace de vie commun. De base, les plans de cette maison se déclinent en version 3 ou 4 chambres et même avec suite parentale incluant une salle-de-bain privative et dressing. Côté énergie, vous pouvez opter pour un chauffage au gaz, par aérothermie ou encore choisir le poêle à pellet.
- Surface habitable : 79,75 m2
- Rez-de-chaussée : 79,75 m2
- Combles perdus
- Emprise au sol : 111,11 m2
- Maison de plain-pied
- Nombre de pièces : 4
- Chambres : 3
- Garage : 15,25 m2
- SdB / SdE : 1
- WC : 1
- Toits 2 pentes
- Architecture classique
- Enduit 2 teintes au choix
- Box domotique Tahoma
Principes constructifs, équipes, éco-matériaux, finitions soignées, SAV et garanties de résultats, tout ne se vaut pas !
Plan de maison neuve et procédé constructif conformes à la RE 2020.
Toutes nos maisons neuves sont contrôlées en fin de chantier par un organisme accrédité COFRAC qui délivre une attestation thermique et un DPE certifié.
Parce que vous n’avez pas tous les mêmes besoins, ni les mêmes goûts, tous les plans de nos maisons sont modifiables. Vous pouvez choisir de les construire tels quels ou de vous en inspirer librement. Nous construisons également des maisons sur mesure : venez avec vos idées ou vos plans !
Compacte et économique, la maison Erica s’adapte à tous les terrains. Cette maison neuve de plain-pied, avec garage intégré, a beaucoup d’atouts pour séduire de jeunes ménages et les investisseurs locatifs. Un grand salon - séjour - cuisine de 41 m², trois chambres et une salle de bains. Vous pouvez personnaliser les plans avec votre conseiller Maisons Lelièvre et choisir, par exemple, de supprimer une chambre pour agrandir l’espace de vie commun. De base, les plans de cette maison se déclinent en version 3 ou 4 chambres et même avec suite parentale incluant une salle-de-bain privative et dressing. Côté énergie, vous pouvez opter pour un chauffage au gaz, par aérothermie ou encore choisir le poêle à pellet.
- Surface habitable : 93,88 m2
- Rez-de-chaussée : 93,88 m2
- Combles perdus
- Emprise au sol : 127,01 m2
- Maison de plain-pied
- Nombre de pièces : 5
- Chambres : 4
- Garage : 15,25 m2
- SdB / SdE : 1
- WC : 1
- Toits 2 pentes
- Architecture classique
- Enduit 2 teintes au choix
- Box domotique Tahoma
Principes constructifs, équipes, éco-matériaux, finitions soignées, SAV et garanties de résultats, tout ne se vaut pas !
Plan de maison neuve et procédé constructif conformes à la RE 2020.
Toutes nos maisons neuves sont contrôlées en fin de chantier par un organisme accrédité COFRAC qui délivre une attestation thermique et un DPE certifié.
Parce que vous n’avez pas tous les mêmes besoins, ni les mêmes goûts, tous les plans de nos maisons sont modifiables. Vous pouvez choisir de les construire tels quels ou de vous en inspirer librement. Nous construisons également des maisons sur mesure : venez avec vos idées ou vos plans !
Compacte et économique, la maison Erica s’adapte à tous les terrains. Cette maison neuve de plain-pied, avec garage intégré, a beaucoup d’atouts pour séduire de jeunes ménages et les investisseurs locatifs. Un grand salon - séjour - cuisine de 41 m², trois chambres et une salle de bains. Vous pouvez personnaliser les plans avec votre conseiller Maisons Lelièvre et choisir, par exemple, de supprimer une chambre pour agrandir l’espace de vie commun. De base, les plans de cette maison se déclinent en version 3 ou 4 chambres et même avec suite parentale incluant une salle-de-bain privative et dressing. Côté énergie, vous pouvez opter pour un chauffage au gaz, par aérothermie ou encore choisir le poêle à pellet.
- Surface habitable : 106,73 m2
- Rez-de-chaussée : 106,73 m2
- Combles perdus
- Emprise au sol : 141,42 m2
- Maison de plain-pied
- Nombre de pièces : 5
- Chambres : 4
- Garage : 15,50 m2
- SdB / SdE : 2
- WC : 1
- Toits 2 pentes
- Architecture classique
- Enduit 2 teintes au choix
- Box domotique Tahoma
Principes constructifs, équipes, éco-matériaux, finitions soignées, SAV et garanties de résultats, tout ne se vaut pas !
Plan de maison neuve et procédé constructif conformes à la RE 2020.
Toutes nos maisons neuves sont contrôlées en fin de chantier par un organisme accrédité COFRAC qui délivre une attestation thermique et un DPE certifié.
Parce que vous n’avez pas tous les mêmes besoins, ni les mêmes goûts, tous les plans de nos maisons sont modifiables. Vous pouvez choisir de les construire tels quels ou de vous en inspirer librement. Nous construisons également des maisons sur mesure : venez avec vos idées ou vos plans !
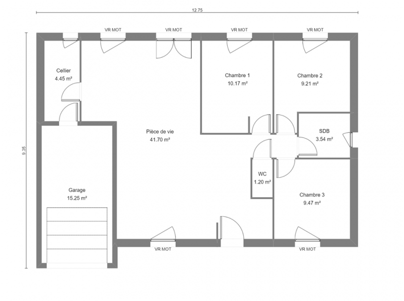
Cette maison de plain-pied accueillante et fonctionnelle dispose d’un porche dont l’esthétique est appuyée par un décroché de toiture. Chaque mètre carré est utilisé de manière à conserver le plus d’espace possible pour la pièce de vie qui bénéficie, en outre, d’un bel éclairage naturel de part et d’autre de la maison. Les plans de cette maison se déclinent en plusieurs versions, 3 ou 4 chambres, et superficies, avec tous les intermédiaires imaginables. Tous nos plans de maison sont en effet modifiables et c’est vous qui jugez de ce qui est essentiel pour vous. Les conseillers Maisons Lelièvre vous accompagnent et modifient très rapidement les bases de plan pour les faire correspondre à vos attentes et à vos budgets.
L’AVEZ VOUS NOTÉ ?
Garage intégré
Cellier pour les rangements
Ixora se décline de 88 à 109 m² avec 3 ou 4 chambres
- Surface habitable : 88,571 m2
- Rez-de-chaussée : 88,571 m2
- Combles perdus
- Emprise au sol : 123,08 m2
- Maison de plain-pied
- Nombre de pièces : 4
- Chambres : 3
- Garage : 15,63 m2
- SdB / SdE : 1
- WC : 1
- Toits 2 pentes
- Porche
- Architecture classique
- Enduit 2 teintes au choix
- Box domotique Tahoma
Principes constructifs, équipes, éco-matériaux, finitions soignées, SAV et garanties de résultats, tout ne se vaut pas !
Plan de maison neuve et procédé constructif conformes à la RE 2020.
Toutes nos maisons neuves sont contrôlées en fin de chantier par un organisme accrédité COFRAC qui délivre une attestation thermique et un DPE certifié.
Parce que vous n’avez pas tous les mêmes besoins, ni les mêmes goûts, tous les plans de nos maisons sont modifiables. Vous pouvez choisir de les construire tels quels ou de vous en inspirer librement. Nous construisons également des maisons sur mesure : venez avec vos idées ou vos plans !
Cette maison de plain-pied accueillante et fonctionnelle dispose d’un porche dont l’esthétique est appuyée par un décroché de toiture. Chaque mètre carré est utilisé de manière à conserver le plus d’espace possible pour la pièce de vie qui bénéficie, en outre, d’un bel éclairage naturel de part et d’autre de la maison. Les plans de cette maison se déclinent en plusieurs versions, 3 ou 4 chambres, et superficies, avec tous les intermédiaires imaginables. Tous nos plans de maison sont en effet modifiables et c’est vous qui jugez de ce qui est essentiel pour vous. Les conseillers Maisons Lelièvre vous accompagnent et modifient très rapidement les bases de plan pour les faire correspondre à vos attentes et à vos budgets.
L’AVEZ VOUS NOTÉ ?
Garage intégré
Cellier pour les rangements
Ixora se décline de 88 à 109 m² avec 3 ou 4 chambres
- Surface habitable : 99,44 m2
- Rez-de-chaussée : 99,44 m2
- Combles perdus
- Emprise au sol : 135,16 m2
- Maison de plain-pied
- Nombre de pièces : 5
- Chambres : 4
- Garage : 15,63 m2
- SdB / SdE : 1
- WC : 1
- Toits 2 pentes
- Porche
- Architecture classique
- Enduit 2 teintes au choix
- Box domotique Tahoma
Principes constructifs, équipes, éco-matériaux, finitions soignées, SAV et garanties de résultats, tout ne se vaut pas !
Plan de maison neuve et procédé constructif conformes à la RE 2020.
Toutes nos maisons neuves sont contrôlées en fin de chantier par un organisme accrédité COFRAC qui délivre une attestation thermique et un DPE certifié.
Parce que vous n’avez pas tous les mêmes besoins, ni les mêmes goûts, tous les plans de nos maisons sont modifiables. Vous pouvez choisir de les construire tels quels ou de vous en inspirer librement. Nous construisons également des maisons sur mesure : venez avec vos idées ou vos plans !
Cette maison de plain-pied accueillante et fonctionnelle dispose d’un porche dont l’esthétique est appuyée par un décroché de toiture. Chaque mètre carré est utilisé de manière à conserver le plus d’espace possible pour la pièce de vie qui bénéficie, en outre, d’un bel éclairage naturel de part et d’autre de la maison. Les plans de cette maison se déclinent en plusieurs versions, 3 ou 4 chambres, et superficies, avec tous les intermédiaires imaginables. Tous nos plans de maison sont en effet modifiables et c’est vous qui jugez de ce qui est essentiel pour vous. Les conseillers Maisons Lelièvre vous accompagnent et modifient très rapidement les bases de plan pour les faire correspondre à vos attentes et à vos budgets.
L’AVEZ VOUS NOTÉ ?
Garage intégré
Cellier pour les rangements
Ixora se décline de 88 à 109 m² avec 3 ou 4 chambres
- Surface habitable : 109,57 m2
- Rez-de-chaussée : 109,57 m2
- Combles perdus
- Emprise au sol : 148 m2
- Maison de plain-pied
- Nombre de pièces : 5
- Chambres : 4
- Garage : 17,12 m2
- SdB / SdE : 2
- WC : 1
- Toits 2 pentes
- Porche
- Architecture classique
- Enduit 2 teintes au choix
- Box domotique Tahoma
Principes constructifs, équipes, éco-matériaux, finitions soignées, SAV et garanties de résultats, tout ne se vaut pas !
Plan de maison neuve et procédé constructif conformes à la RE 2020.
Toutes nos maisons neuves sont contrôlées en fin de chantier par un organisme accrédité COFRAC qui délivre une attestation thermique et un DPE certifié.
Parce que vous n’avez pas tous les mêmes besoins, ni les mêmes goûts, tous les plans de nos maisons sont modifiables. Vous pouvez choisir de les construire tels quels ou de vous en inspirer librement. Nous construisons également des maisons sur mesure : venez avec vos idées ou vos plans !
Cette maison de plain-pied à l’allure traditionnelle conjugue simplicité et convivialité sur 92 m². Son plan en L intègre un garage. Le salon sépare deux espaces de nuit distinct : La suite parentale d’un côté, les chambres des enfants de l’autre avec leur propre salle de bain. La cuisine, pour ceux qui préfèrent ne pas tout mélanger, est ici un espace séparé du salon, sans être pourtant totalement coupé de la vie qui s’y déroule, puisqu’une verrière est intégrée au mur mitoyen. Ce plan de maison neuve se décline en version 4 chambres. Nous ajustons avec vous les dimensions des pièces, leur disposition et la surface totale de la maison selon vos besoins. Un poêle à pellet est tout à fait adapté pour chauffer cette maison, mais vous pouvez bien-sûr choisir un mode chauffage par aérothermie ou au gaz.
L’AVEZ VOUS NOTÉ ?
Suite parentale
Garage intégré
Cellier pour les rangements
Rosa se décline de 92 à 106 m² avec 3 ou 4 chambres
- Surface habitable : 92,28 m2
- Rez-de-chaussée : 92,28 m2
- Combles perdus
- Emprise au sol : 126,26 m2
- Maison de plain-pied
- Nombre de pièces : 5
- Chambres : 3
- Garage : 15,07 m2
- SdB / SdE : 2
- WC : 1
- Toits 2 pentes
- Architecture classique
- Enduit 2 teintes au choix
- Box domotique Tahoma
Principes constructifs, équipes, éco-matériaux, finitions soignées, SAV et garanties de résultats, tout ne se vaut pas !
Plan de maison neuve et procédé constructif conformes à la RE 2020.
Toutes nos maisons neuves sont contrôlées en fin de chantier par un organisme accrédité COFRAC qui délivre une attestation thermique et un DPE certifié.
Parce que vous n’avez pas tous les mêmes besoins, ni les mêmes goûts, tous les plans de nos maisons sont modifiables. Vous pouvez choisir de les construire tels quels ou de vous en inspirer librement. Nous construisons également des maisons sur mesure : venez avec vos idées ou vos plans !
Cette maison de plain-pied à l’allure traditionnelle conjugue simplicité et convivialité sur 92 m². Son plan en L intègre un garage. Le salon sépare deux espaces de nuit distinct : La suite parentale d’un côté, les chambres des enfants de l’autre avec leur propre salle de bain. La cuisine, pour ceux qui préfèrent ne pas tout mélanger, est ici un espace séparé du salon, sans être pourtant totalement coupé de la vie qui s’y déroule, puisqu’une verrière est intégrée au mur mitoyen. Ce plan de maison neuve se décline en version 4 chambres. Nous ajustons avec vous les dimensions des pièces, leur disposition et la surface totale de la maison selon vos besoins. Un poêle à pellet est tout à fait adapté pour chauffer cette maison, mais vous pouvez bien-sûr choisir un mode chauffage par aérothermie ou au gaz.
L’AVEZ VOUS NOTÉ ?
Suite parentale
Garage intégré
Cellier pour les rangements
Rosa se décline de 92 à 106 m² avec 3 ou 4 chambres
- Surface habitable : 106,82 m2
- Rez-de-chaussée : 106,82 m2
- Combles perdus
- Emprise au sol : 142,37 m2
- Maison de plain-pied
- Nombre de pièces : 5
- Chambres : 4
- Garage : 15,07 m2
- SdB / SdE : 2
- WC : 1
- Toits 2 pentes
- Architecture classique
- Enduit 2 teintes au choix
- Box domotique Tahoma
Principes constructifs, équipes, éco-matériaux, finitions soignées, SAV et garanties de résultats, tout ne se vaut pas !
Plan de maison neuve et procédé constructif conformes à la RE 2020.
Toutes nos maisons neuves sont contrôlées en fin de chantier par un organisme accrédité COFRAC qui délivre une attestation thermique et un DPE certifié.
Parce que vous n’avez pas tous les mêmes besoins, ni les mêmes goûts, tous les plans de nos maisons sont modifiables. Vous pouvez choisir de les construire tels quels ou de vous en inspirer librement. Nous construisons également des maisons sur mesure : venez avec vos idées ou vos plans !
Une conception en U et beaucoup d’originalité pour cette maison de plain-pied qui s’enroule autour d’un jardin intérieur. Les plans de cette maison individuelle sont constitués de trois blocs perpendiculaires et donnent une place centrale à la pièce de vie de 46 m². Vous noterez les dimensions inhabituelles de la baie vitrée coulissante, 4 mètres d’envergure, pour profiter des extérieurs été comme hiver. L’aile gauche de la maison est réservée aux chambres dont une vaste suite parentale qui dispose, entre autres, d’une entrée percée par un alignement élégant de 3 fenêtres étroites. L’aile droite de la maison inclut le garage facilement transformable en atelier, d’autant que les plans prévoient d’emblée deux fenêtres horizontales. Ce plan de maison en U se décline de 108 à 126 m² avec 3 ou 4 chambres, tous les intermédiaires sont également envisageables.
L’AVEZ VOUS NOTÉ ?
Suite parentale de 21 m²
Garage intégré
Baie coulissante de quatre mètres d’envergure
- Surface habitable : 108,02 m2
- Rez-de-chaussée : 108,02 m2
- Combles perdus
- Emprise au sol : 157,32 m2
- Maison de plain-pied
- Nombre de pièces : 4
- Chambres : 3
- Garage : 22,24 m2
- SdB / SdE : 2
- WC : 1
- Toits 4 pentes
- Architecture classique
- Enduit 2 teintes au choix
- Box domotique Tahoma
Principes constructifs, équipes, éco-matériaux, finitions soignées, SAV et garanties de résultats, tout ne se vaut pas !
Plan de maison neuve et procédé constructif conformes à la RE 2020.
Toutes nos maisons neuves sont contrôlées en fin de chantier par un organisme accrédité COFRAC qui délivre une attestation thermique et un DPE certifié.
Parce que vous n’avez pas tous les mêmes besoins, ni les mêmes goûts, tous les plans de nos maisons sont modifiables. Vous pouvez choisir de les construire tels quels ou de vous en inspirer librement. Nous construisons également des maisons sur mesure : venez avec vos idées ou vos plans !
Une conception en U et beaucoup d’originalité pour cette maison de plain-pied qui s’enroule autour d’un jardin intérieur. Les plans de cette maison individuelle sont constitués de trois blocs perpendiculaires et donnent une place centrale à la pièce de vie de 46 m². Vous noterez les dimensions inhabituelles de la baie vitrée coulissante, 4 mètres d’envergure, pour profiter des extérieurs été comme hiver. L’aile gauche de la maison est réservée aux chambres dont une vaste suite parentale qui dispose, entre autres, d’une entrée percée par un alignement élégant de 3 fenêtres étroites. L’aile droite de la maison inclut le garage facilement transformable en atelier, d’autant que les plans prévoient d’emblée deux fenêtres horizontales. Ce plan de maison en U se décline de 108 à 126 m² avec 3 ou 4 chambres, tous les intermédiaires sont également envisageables.
L’AVEZ VOUS NOTÉ ?
Suite parentale de 21 m²
Garage intégré
Baie coulissante de quatre mètres d’envergure
- Surface habitable : 126,91 m2
- Rez-de-chaussée : 126,91 m2
- Combles perdus
- Emprise au sol : 179,18 m2
- Maison de plain-pied
- Nombre de pièces : 5
- Chambres : 4
- Garage : 23,57 m2
- SdB / SdE : 1
- WC : 1
- Toits 4 pentes
- Architecture classique
- Enduit 2 teintes au choix
- Box domotique Tahoma
Principes constructifs, équipes, éco-matériaux, finitions soignées, SAV et garanties de résultats, tout ne se vaut pas !
Plan de maison neuve et procédé constructif conformes à la RE 2020.
Toutes nos maisons neuves sont contrôlées en fin de chantier par un organisme accrédité COFRAC qui délivre une attestation thermique et un DPE certifié.
Parce que vous n’avez pas tous les mêmes besoins, ni les mêmes goûts, tous les plans de nos maisons sont modifiables. Vous pouvez choisir de les construire tels quels ou de vous en inspirer librement. Nous construisons également des maisons sur mesure : venez avec vos idées ou vos plans !
La toiture à quatre pans donne à cette maison neuve une allure résolument moderne. Son porche s’insère parfaitement dans la structure en L de son architecture. La pièce de vie, prolongée d’un espace cuisine en retrait, jouit d’une double exposition à la lumière via deux vastes portes-fenêtres coulissantes. Comme tous nos plans de maison en L, l’espace est conçu pour préserver la tranquillité de chacun en séparant de manière pertinente les espaces nuit des espaces jours, sans pour autant perdre la moindre place. Ce modèle de maison individuelle se décline, selon le même principe d’aménagement, en différentes surfaces, de 90 à 117 m², 3 ou 4 chambres et même avec suite parentale incluant une salle-de-bain privative et dressing.
L’AVEZ VOUS NOTÉ ?
Deux baies vitrées pour une double exposition
Garage intégré
Clematis se décline de 90 à 117 m² avec 3 ou 4 chambres
- Surface habitable : 90,82 m2
- Rez-de-chaussée : 90,82 m2
- Combles perdus
- Emprise au sol : 128,19 m2
- Maison de plain-pied
- Nombre de pièces : 5
- Chambres : 3
- Garage : 16,48 m2
- SdB / SdE : 1
- WC : 1
- Toits 4 pentes
- Porche
- Architecture classique
- Enduit 2 teintes au choix
- Box domotique Tahoma
Principes constructifs, équipes, éco-matériaux, finitions soignées, SAV et garanties de résultats, tout ne se vaut pas !
Plan de maison neuve et procédé constructif conformes à la RE 2020.
Toutes nos maisons neuves sont contrôlées en fin de chantier par un organisme accrédité COFRAC qui délivre une attestation thermique et un DPE certifié.
Parce que vous n’avez pas tous les mêmes besoins, ni les mêmes goûts, tous les plans de nos maisons sont modifiables. Vous pouvez choisir de les construire tels quels ou de vous en inspirer librement. Nous construisons également des maisons sur mesure : venez avec vos idées ou vos plans !
La toiture à quatre pans donne à cette maison neuve une allure résolument moderne. Son porche s’insère parfaitement dans la structure en L de son architecture. La pièce de vie, prolongée d’un espace cuisine en retrait, jouit d’une double exposition à la lumière via deux vastes portes-fenêtres coulissantes. Comme tous nos plans de maison en L, l’espace est conçu pour préserver la tranquillité de chacun en séparant de manière pertinente les espaces nuit des espaces jours, sans pour autant perdre la moindre place. Ce modèle de maison individuelle se décline, selon le même principe d’aménagement, en différentes surfaces, de 90 à 117 m², 3 ou 4 chambres et même avec suite parentale incluant une salle-de-bain privative et dressing.
L’AVEZ VOUS NOTÉ ?
Deux baies vitrées pour une double exposition
Garage intégré
Clematis se décline de 90 à 117 m² avec 3 ou 4 chambres
- Surface habitable : 103,56 m2
- Rez-de-chaussée : 103,56 m2
- Combles perdus
- Emprise au sol : 142,60 m2
- Maison de plain-pied
- Nombre de pièces : 5
- Chambres : 4
- Garage : 16,48 m2
- SdB / SdE : 1
- WC : 1
- Toits 4 pentes
- Porche
- Architecture classique
- Enduit 2 teintes au choix
- Box domotique Tahoma
Principes constructifs, équipes, éco-matériaux, finitions soignées, SAV et garanties de résultats, tout ne se vaut pas !
Plan de maison neuve et procédé constructif conformes à la RE 2020.
Toutes nos maisons neuves sont contrôlées en fin de chantier par un organisme accrédité COFRAC qui délivre une attestation thermique et un DPE certifié.
Parce que vous n’avez pas tous les mêmes besoins, ni les mêmes goûts, tous les plans de nos maisons sont modifiables. Vous pouvez choisir de les construire tels quels ou de vous en inspirer librement. Nous construisons également des maisons sur mesure : venez avec vos idées ou vos plans !
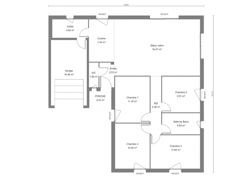
La toiture à quatre pans donne à cette maison neuve une allure résolument moderne. Son porche s’insère parfaitement dans la structure en L de son architecture. La pièce de vie, prolongée d’un espace cuisine en retrait, jouit d’une double exposition à la lumière via deux vastes portes-fenêtres coulissantes. Comme tous nos plans de maison en L, l’espace est conçu pour préserver la tranquillité de chacun en séparant de manière pertinente les espaces nuit des espaces jours, sans pour autant perdre la moindre place. Ce modèle de maison individuelle se décline, selon le même principe d’aménagement, en différentes surfaces, de 90 à 117 m², 3 ou 4 chambres et même avec suite parentale incluant une salle-de-bain privative et dressing.
L’AVEZ VOUS NOTÉ ?
Deux baies vitrées pour une double exposition
Garage intégré
Clematis se décline de 90 à 117 m² avec 3 ou 4 chambres
- Surface habitable : 117,72 m2
- Rez-de-chaussée : 117,72 m2
- Combles perdus
- Emprise au sol : 158,57 m2
- Maison de plain-pied
- Nombre de pièces : 5
- Chambres : 4
- Garage : 16,48 m2
- SdB / SdE : 2
- WC : 1
- Toits 4 pentes
- Porche
- Architecture classique
- Enduit 2 teintes au choix
- Box domotique Tahoma
Principes constructifs, équipes, éco-matériaux, finitions soignées, SAV et garanties de résultats, tout ne se vaut pas !
Plan de maison neuve et procédé constructif conformes à la RE 2020.
Toutes nos maisons neuves sont contrôlées en fin de chantier par un organisme accrédité COFRAC qui délivre une attestation thermique et un DPE certifié.
Parce que vous n’avez pas tous les mêmes besoins, ni les mêmes goûts, tous les plans de nos maisons sont modifiables. Vous pouvez choisir de les construire tels quels ou de vous en inspirer librement. Nous construisons également des maisons sur mesure : venez avec vos idées ou vos plans !
Plans de maisons individuelles 100% conformes RE 2020
La meilleure énergie, c’est celle qu’on ne consomme pas.
Plus exigeante que la RT2012, La Réglementation Environnementale 2020 limite l’impact environnemental global des constructions tout en préservant le confort des habitants. Tous nos plans et procédés constructifs sont conformes à la RE 2020.
Très bien isolée et bien exposée, une maison RE 2020 consomme peu d’énergie et garantit un niveau de confort en cas de forte chaleur. Ses besoins en énergie sont couverts par des sources non fossile. L’impact carbone des matériaux de construction entre désormais dans le calcul.