Modifiez vos plans très rapidement avec votre conseiller Maisons lelièvre [+]
Plans en U
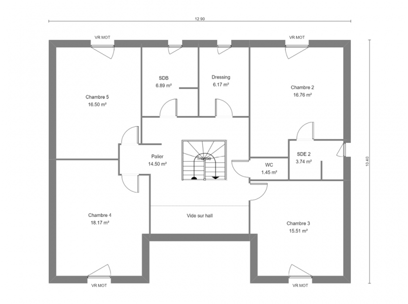
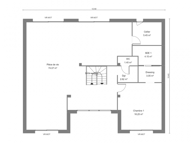
Voici la plus vaste des maisons Lelièvre, plus de 208 m² habitables. Vous ne risquez pas de vous sentir à l’étroit, ni de manquer de manquer de lumière au vu du mur vitré qui occupe près d’un tiers de la façade avant, et ce sur les 2 niveaux de la maison. La pièce de vie, qui inclut l’espace cuisine dans sa continuité, cumule à elle seule près de 75. m². Cette pièce bénéficie d’un magnifique éclairage naturel, profitant largement de l’apport lumineux de la grande baie vitrée qui court sur les 2 étages de la maison. Cette maison comprend cinq grandes chambres, dont une suite au RDC, incluant un dressing et une salle de bains privative. À noter également, la présence de 2 salles-de-bain à l’étage pour desservir les 4 chambres. Sur ce modèle de maison à étage, les chambres ne sont pas mansardées, la surface au sol est la même qu’au plafond. Les plans prévoient des espaces généreux, en moyenne 16 m² et souvent plus, pour les chambres.
L’AVEZ VOUS NOTÉ ?
Majestueux vide sur entrée
Suite parentale de 24 m²
4 chambres à l’étage de 16,50 m² de surface moyenne
Fenêtre panoramique dans la cuisine
- Surface habitable : 208,16 m2
- Rez-de-chaussée : 108,77 m2
- Étage : 99,35 m2
- Combles perdus
- Emprise au sol : 126,42 m2
- Maison avec étage
- Nombre de pièces : 6
- Chambres : 5
- SdB / SdE : 3
- WC : 2
- Toits 4 pentes
- Architecture classique
- Enduit 2 teintes au choix
- Box domotique Tahoma
Principes constructifs, équipes, éco-matériaux, finitions soignées, SAV et garanties de résultats, tout ne se vaut pas !
Plan de maison neuve et procédé constructif conformes à la RE 2020.
Toutes nos maisons neuves sont contrôlées en fin de chantier par un organisme accrédité COFRAC qui délivre une attestation thermique et un DPE certifié.
Parce que vous n’avez pas tous les mêmes besoins, ni les mêmes goûts, tous les plans de nos maisons sont modifiables. Vous pouvez choisir de les construire tels quels ou de vous en inspirer librement. Nous construisons également des maisons sur mesure : venez avec vos idées ou vos plans !
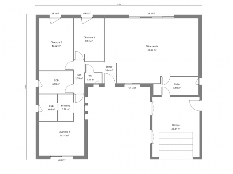
Une conception en U et beaucoup d’originalité pour cette maison de plain-pied qui s’enroule autour d’un jardin intérieur. Les plans de cette maison individuelle sont constitués de trois blocs perpendiculaires et donnent une place centrale à la pièce de vie de 46 m². Vous noterez les dimensions inhabituelles de la baie vitrée coulissante, 4 mètres d’envergure, pour profiter des extérieurs été comme hiver. L’aile gauche de la maison est réservée aux chambres dont une vaste suite parentale qui dispose, entre autres, d’une entrée percée par un alignement élégant de 3 fenêtres étroites. L’aile droite de la maison inclut le garage facilement transformable en atelier, d’autant que les plans prévoient d’emblée deux fenêtres horizontales. Ce plan de maison en U se décline de 108 à 126 m² avec 3 ou 4 chambres, tous les intermédiaires sont également envisageables.
L’AVEZ VOUS NOTÉ ?
Suite parentale de 21 m²
Garage intégré
Baie coulissante de quatre mètres d’envergure
- Surface habitable : 108,02 m2
- Rez-de-chaussée : 108,02 m2
- Combles perdus
- Emprise au sol : 157,32 m2
- Maison de plain-pied
- Nombre de pièces : 4
- Chambres : 3
- Garage : 22,24 m2
- SdB / SdE : 2
- WC : 1
- Toits 4 pentes
- Architecture classique
- Enduit 2 teintes au choix
- Box domotique Tahoma
Principes constructifs, équipes, éco-matériaux, finitions soignées, SAV et garanties de résultats, tout ne se vaut pas !
Plan de maison neuve et procédé constructif conformes à la RE 2020.
Toutes nos maisons neuves sont contrôlées en fin de chantier par un organisme accrédité COFRAC qui délivre une attestation thermique et un DPE certifié.
Parce que vous n’avez pas tous les mêmes besoins, ni les mêmes goûts, tous les plans de nos maisons sont modifiables. Vous pouvez choisir de les construire tels quels ou de vous en inspirer librement. Nous construisons également des maisons sur mesure : venez avec vos idées ou vos plans !
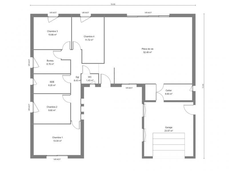
Une conception en U et beaucoup d’originalité pour cette maison de plain-pied qui s’enroule autour d’un jardin intérieur. Les plans de cette maison individuelle sont constitués de trois blocs perpendiculaires et donnent une place centrale à la pièce de vie de 46 m². Vous noterez les dimensions inhabituelles de la baie vitrée coulissante, 4 mètres d’envergure, pour profiter des extérieurs été comme hiver. L’aile gauche de la maison est réservée aux chambres dont une vaste suite parentale qui dispose, entre autres, d’une entrée percée par un alignement élégant de 3 fenêtres étroites. L’aile droite de la maison inclut le garage facilement transformable en atelier, d’autant que les plans prévoient d’emblée deux fenêtres horizontales. Ce plan de maison en U se décline de 108 à 126 m² avec 3 ou 4 chambres, tous les intermédiaires sont également envisageables.
L’AVEZ VOUS NOTÉ ?
Suite parentale de 21 m²
Garage intégré
Baie coulissante de quatre mètres d’envergure
- Surface habitable : 126,91 m2
- Rez-de-chaussée : 126,91 m2
- Combles perdus
- Emprise au sol : 179,18 m2
- Maison de plain-pied
- Nombre de pièces : 5
- Chambres : 4
- Garage : 23,57 m2
- SdB / SdE : 1
- WC : 1
- Toits 4 pentes
- Architecture classique
- Enduit 2 teintes au choix
- Box domotique Tahoma
Principes constructifs, équipes, éco-matériaux, finitions soignées, SAV et garanties de résultats, tout ne se vaut pas !
Plan de maison neuve et procédé constructif conformes à la RE 2020.
Toutes nos maisons neuves sont contrôlées en fin de chantier par un organisme accrédité COFRAC qui délivre une attestation thermique et un DPE certifié.
Parce que vous n’avez pas tous les mêmes besoins, ni les mêmes goûts, tous les plans de nos maisons sont modifiables. Vous pouvez choisir de les construire tels quels ou de vous en inspirer librement. Nous construisons également des maisons sur mesure : venez avec vos idées ou vos plans !
Plans de maisons individuelles 100% conformes RE 2020
La meilleure énergie, c’est celle qu’on ne consomme pas.
Plus exigeante que la RT2012, La Réglementation Environnementale 2020 limite l’impact environnemental global des constructions tout en préservant le confort des habitants. Tous nos plans et procédés constructifs sont conformes à la RE 2020.
Très bien isolée et bien exposée, une maison RE 2020 consomme peu d’énergie et garantit un niveau de confort en cas de forte chaleur. Ses besoins en énergie sont couverts par des sources non fossile. L’impact carbone des matériaux de construction entre désormais dans le calcul.