Modifiez vos plans très rapidement avec votre conseiller Maisons lelièvre [+]
Maisons à étage
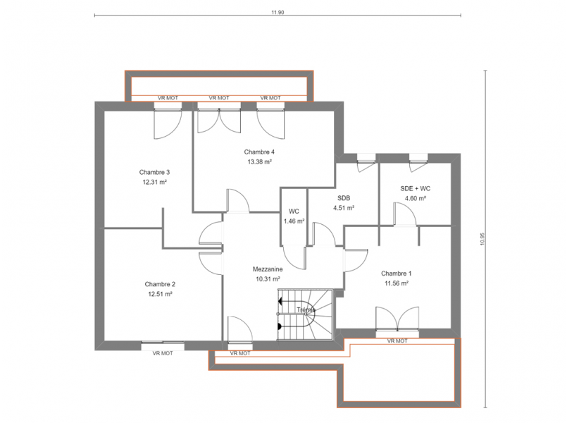
Conçue sur un principe d’imbrication de 3 modules architecturaux, cette maison neuve affirme son originalité autant que toute attention que nous portons au confort de vie de ses habitants. Modernes et spacieux, les plans de cette maison individuelle s’articulent autour d’un module central, dont l’étage, à plancher béton, abrite quatre chambres. La pièce de vie totalise près de 67 m², ce bel espace rectangulaire se prête à tous les aménagements et la lumière naturelle y est omniprésente grâce à deux grandes baies coulissantes ouvertes de part et d’autre du jardin. Judicieusement isolée des espaces communs, la suite parentale située en rez-de-chaussée dispose d’un accès privatif au jardin, via une belle baie vitrée coulissante. Le grand garage de cette maison, livré en chape lisse et équipé d’une fenêtre, permet d’envisager facilement l’installation d’un atelier. Vous pouvez bien-sûr personnaliser librement ce plan pour l’ajuster à vos modes de vies.
L’AVEZ VOUS NOTÉ ?
Suite parentale en rez-de-jardin totalisant près de 28 m²
Garage accolé de 37 m² avec accès direct au jardin et au cellier
Un cellier spacieux accessible par la cuisine et le jardin
- Surface habitable : 164,69 m2
- Rez-de-chaussée : 101,59 m2
- Étage : 63,10 m2
- Combles aménagés
- Emprise au sol : 162,20 m2
- Maison avec étage
- Nombre de pièces : 6
- Chambres : 5
- Garage : 37,16 m2
- SdB / SdE : 2
- WC : 2
- Toits 3 et 4 pentes
- Porche
- Architecture classique
- Enduit 2 teintes au choix
- Box domotique Tahoma
Principes constructifs, équipes, éco-matériaux, finitions soignées, SAV et garanties de résultats, tout ne se vaut pas !
Plan de maison neuve et procédé constructif conformes à la RE 2020.
Toutes nos maisons neuves sont contrôlées en fin de chantier par un organisme accrédité COFRAC qui délivre une attestation thermique et un DPE certifié.
Parce que vous n’avez pas tous les mêmes besoins, ni les mêmes goûts, tous les plans de nos maisons sont modifiables. Vous pouvez choisir de les construire tels quels ou de vous en inspirer librement. Nous construisons également des maisons sur mesure : venez avec vos idées ou vos plans !
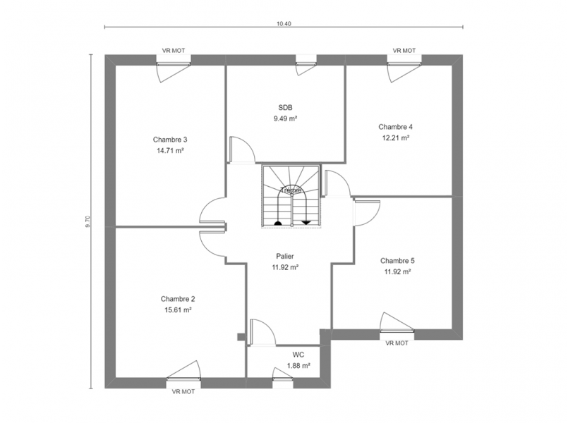
Cette maison neuve à étage fait partie des plus vastes de notre gamme : 166 m² habitables et pas un mètre carré qui ne soit pleinement utilisable. Vous noterez sa charpente Mansart caractérisée par une toiture à quatre versants, formés chacun de 2 pentes différentes. Cette architecture de style classique apparue au XVIIe siècle n’a pas pris une ride. Deux ouvertures en oeil de boeuf et quatre lucarnes meunières (dites aussi pendantes ou feunières, en raison de leur inscription dans le prolongement vertical de la façade sous la gouttière de la toiture) témoignent du soin de la conception architecturale de cette maison. Les parements d’angles des façades s’inscrivent dans la même cohérence de style. Que vous ayez de nombreux amis ou beaucoup d’enfants, le plan de cette maison neuve inclus 5 belles chambres et un vaste espace de vie de plus de 58 m². Une suite parentale de 20 m² prend place en rez-de-chaussée, on accède à sa salle de bain en traversant le dressing. Une mezzanine de 17 m² surplombe le séjour et dessert les 4 chambres de l’étage. Très ouverte sur les espaces verts, la conception de la maison permet 5 accès direct à l’extérieur via 4 portes fenêtres qui s’ajoutent à la porte d’entrée. Comme tous les plans de nos maisons, vous pouvez choisir de la construire telle quelle, de l’adapter à vos besoins ou de vous en inspirer librement. Les conseillers Maisons Lelièvre savent ajuster très rapidement les plans à vos demandes, n’hésitez pas à la solliciter.
L’AVEZ VOUS NOTÉ ?
Espaces dans les chambres prévus pour intégrer des placards
Mezzanine de 17 m²
Dressing de 7 m² à l’étage
- Surface habitable : 166,53 m2
- Rez-de-chaussée : 84,43 m2
- Étage : 82,10 m2
- Combles aménagés
- Emprise au sol : 100,80 m2
- Maison avec étage
- Nombre de pièces : 6
- Chambres : 5
- SdB / SdE : 2
- WC : 2
- Toits 4 pentes
- Architecture classique
- Enduit 2 teintes au choix
- Box domotique Tahoma
Principes constructifs, équipes, éco-matériaux, finitions soignées, SAV et garanties de résultats, tout ne se vaut pas !
Plan de maison neuve et procédé constructif conformes à la RE 2020.
Toutes nos maisons neuves sont contrôlées en fin de chantier par un organisme accrédité COFRAC qui délivre une attestation thermique et un DPE certifié.
Parce que vous n’avez pas tous les mêmes besoins, ni les mêmes goûts, tous les plans de nos maisons sont modifiables. Vous pouvez choisir de les construire tels quels ou de vous en inspirer librement. Nous construisons également des maisons sur mesure : venez avec vos idées ou vos plans !
Cette maison neuve de style tradition joue la symétrie avec élégance, son pignon central est flanqué de 2 baies vitrées, elles-mêmes surmontées de deux fenêtres de toit jumelles et à fronton triangulaire. Deux ouvertures en demi-lune, une côté jardin et l’autre côté cour, s’inscrivent dans la même logique symétrique de l’architecture. Un bow-window, largement ouvert sur le jardin et idéal pour les amoureux des plantes vertes, vient apporter un charme particulier à la pièce de vie principale. Les dimensions de l’espace de vie sont généreuses, 54 m² au total, s’y ajoute un cellier attenant pour les rangements et une chambre disposant d’une salle de bain privative. Notez que l’escalier qui dessert l’étage de la maison dissimule habillement les WC du rez-de-chaussée. À l’étage quatre chambres et un pallier qui pourra servir d’espace multimédia. Des combles aménageables, tout de suite ou plus tard, surplombent le garage accolé. De quoi imaginer à terme une chambre supplémentaire, un espace de stockage ou, pourquoi pas, un petit studio indépendant. C’est vous bien-sûr qui choisissez les teintes des enduits, les matériaux de la couverture et même le style de votre escalier, les plans sont également entièrement modifiables.
L’AVEZ VOUS NOTÉ ?
Combles aménageables de près de 17 m²
Bow-window
Espaces dans les chambres prévus pour intégrer des placards
- Surface habitable : 133,73 m2
- Rez-de-chaussée : 69,47 m2
- Étage : 63,52 m2
- Combles aménageables
- Emprise au sol : 112,75 m2
- Maison avec étage
- Nombre de pièces : 7
- Chambres : 5
- Garage : 23,05 m2
- SdB / SdE : 2
- WC : 2
- Toits 2 pentes
- Architecture classique
- Enduit 2 teintes au choix
- Box domotique Tahoma
Principes constructifs, équipes, éco-matériaux, finitions soignées, SAV et garanties de résultats, tout ne se vaut pas !
Plan de maison neuve et procédé constructif conformes à la RE 2020.
Toutes nos maisons neuves sont contrôlées en fin de chantier par un organisme accrédité COFRAC qui délivre une attestation thermique et un DPE certifié.
Parce que vous n’avez pas tous les mêmes besoins, ni les mêmes goûts, tous les plans de nos maisons sont modifiables. Vous pouvez choisir de les construire tels quels ou de vous en inspirer librement. Nous construisons également des maisons sur mesure : venez avec vos idées ou vos plans !
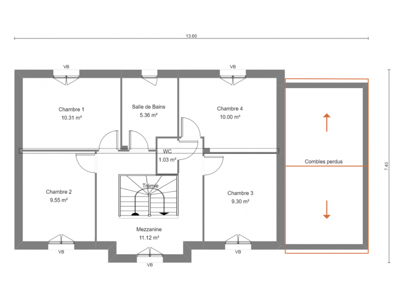
Conçue pour une famille nombreuse ou pour les amateurs de grands espaces, le modèle de maison neuve Daphné optimise l’espace pour le bien-être de ses occupants. Avec quatre chambres à l’étage d’une surface moyenne de 11,5 m² donnant sur une mezzanine de près de 14 m², ce niveau supérieur est un mélange subtil entre intimité et partage. Les enfants pourront se réunir dans cet espace multimédia pour partager leur temps et souder leurs liens. Au rez-de-chaussée la chambre dispose d’une salle d’eau privative. La cuisine, qui peut être cloisonnée si souhaité, s’ouvre sur un salon traversant qu’illumine une large baie vitrée de 2,80m d’envergure.
L’AVEZ VOUS NOTÉ ?
Adaptable pour profession libérale
Double garage de 41 m² avec entrée indépendante
Un cellier spacieux accessible par le garage et la cuisine
- Surface habitable : 131,63 m2
- Rez-de-chaussée : 65,16 m2
- Étage : 66,53 m2
- Combles perdus
- Emprise au sol : 127,38 m2
- Maison avec étage
- Nombre de pièces : 7
- Chambres : 5
- Garage : 40,98 m2
- SdB / SdE : 2
- WC : 2
- Porche
- Architecture classique
- Enduit 2 teintes au choix
- Box domotique Tahoma
Principes constructifs, équipes, éco-matériaux, finitions soignées, SAV et garanties de résultats, tout ne se vaut pas !
Plan de maison neuve et procédé constructif conformes à la RE 2020.
Toutes nos maisons neuves sont contrôlées en fin de chantier par un organisme accrédité COFRAC qui délivre une attestation thermique et un DPE certifié.
Parce que vous n’avez pas tous les mêmes besoins, ni les mêmes goûts, tous les plans de nos maisons sont modifiables. Vous pouvez choisir de les construire tels quels ou de vous en inspirer librement. Nous construisons également des maisons sur mesure : venez avec vos idées ou vos plans !
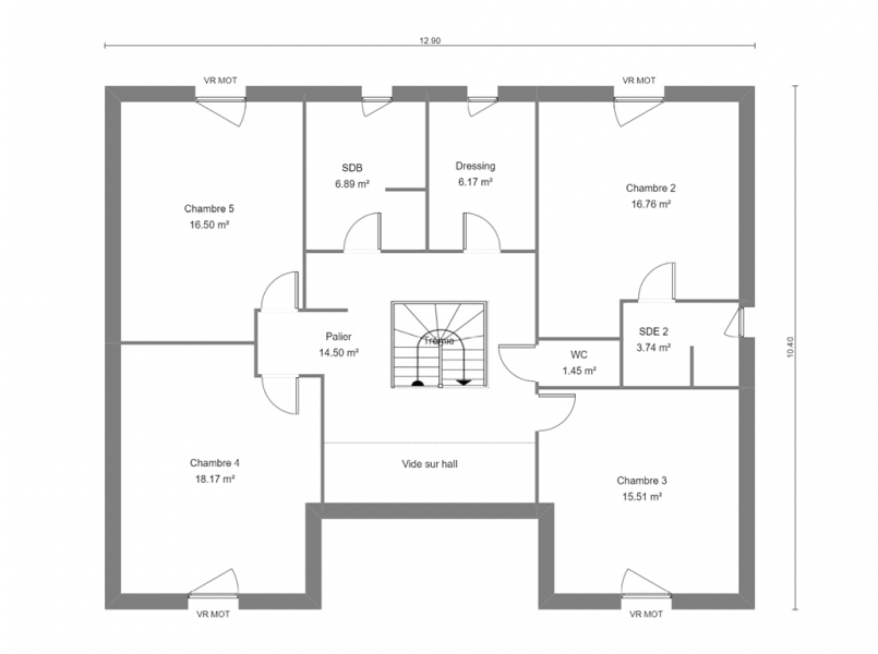
Voici la plus vaste des maisons Lelièvre, plus de 208 m² habitables. Vous ne risquez pas de vous sentir à l’étroit, ni de manquer de manquer de lumière au vu du mur vitré qui occupe près d’un tiers de la façade avant, et ce sur les 2 niveaux de la maison. La pièce de vie, qui inclut l’espace cuisine dans sa continuité, cumule à elle seule près de 75. m². Cette pièce bénéficie d’un magnifique éclairage naturel, profitant largement de l’apport lumineux de la grande baie vitrée qui court sur les 2 étages de la maison. Cette maison comprend cinq grandes chambres, dont une suite au RDC, incluant un dressing et une salle de bains privative. À noter également, la présence de 2 salles-de-bain à l’étage pour desservir les 4 chambres. Sur ce modèle de maison à étage, les chambres ne sont pas mansardées, la surface au sol est la même qu’au plafond. Les plans prévoient des espaces généreux, en moyenne 16 m² et souvent plus, pour les chambres.
L’AVEZ VOUS NOTÉ ?
Majestueux vide sur entrée
Suite parentale de 24 m²
4 chambres à l’étage de 16,50 m² de surface moyenne
Fenêtre panoramique dans la cuisine
- Surface habitable : 208,16 m2
- Rez-de-chaussée : 108,77 m2
- Étage : 99,35 m2
- Combles perdus
- Emprise au sol : 126,42 m2
- Maison avec étage
- Nombre de pièces : 6
- Chambres : 5
- SdB / SdE : 3
- WC : 2
- Toits 4 pentes
- Architecture classique
- Enduit 2 teintes au choix
- Box domotique Tahoma
Principes constructifs, équipes, éco-matériaux, finitions soignées, SAV et garanties de résultats, tout ne se vaut pas !
Plan de maison neuve et procédé constructif conformes à la RE 2020.
Toutes nos maisons neuves sont contrôlées en fin de chantier par un organisme accrédité COFRAC qui délivre une attestation thermique et un DPE certifié.
Parce que vous n’avez pas tous les mêmes besoins, ni les mêmes goûts, tous les plans de nos maisons sont modifiables. Vous pouvez choisir de les construire tels quels ou de vous en inspirer librement. Nous construisons également des maisons sur mesure : venez avec vos idées ou vos plans !
Idéale pour les petits terrains en ville, en région parisienne et pour les situations de construction accolée, la maison Iberis se déploie sur trois niveaux habitables et compte sept chambres dont une suite parentale en rez-de-chaussée. 139 m² habitables pour une emprise au sol, incluant le garage, d’un peu plus de 93 m². Le moindre espace est optimisé et, sous les toits, deux chambres spacieuses sont accessibles par un large palier. Cette maison offre de multiples possibilités d’aménagement qu’il s’agisse d’héberger une grande famille, de répondre à des besoins d’espaces de télétravail ou à un investissement locatif pour colocation. Comme sur toutes nos maisons à étage, les planchers bétons entre chaque niveau garantissent un excellent confort acoustique.
L’AVEZ VOUS NOTÉ ?
Style traditionnel hérité des longères qui respecte les normes des bâtiments de France
Garage accolé avec entrée indépendante
Un cellier spacieux accessible par le garage et la cuisine
- Surface habitable : 139,18 m2
- Rez-de-chaussée : 60,82 m2
- Étage : 56,82 m2
- Combles aménagés
- Emprise au sol : 93,84 m2
- Maison avec étage
- Nombre de pièces : 9
- Chambres : 7
- Garage : 18,71 m2
- SdB / SdE : 2
- WC : 2
- Toits 2 pentes
- Architecture classique
- Enduit 2 teintes au choix
- Box domotique Tahoma
Principes constructifs, équipes, éco-matériaux, finitions soignées, SAV et garanties de résultats, tout ne se vaut pas !
Plan de maison neuve et procédé constructif conformes à la RE 2020.
Toutes nos maisons neuves sont contrôlées en fin de chantier par un organisme accrédité COFRAC qui délivre une attestation thermique et un DPE certifié.
Parce que vous n’avez pas tous les mêmes besoins, ni les mêmes goûts, tous les plans de nos maisons sont modifiables. Vous pouvez choisir de les construire tels quels ou de vous en inspirer librement. Nous construisons également des maisons sur mesure : venez avec vos idées ou vos plans !
Plébiscitée en région parisienne, cette maison à étage se prête aux constructions mitoyennes en lotissement ou en centre-ville. La maison KERRIA est facile à implanter, même sur de très petits terrains : moins de 80 m² au sol et pourtant plus de 108 m² habitables auquel s’ajoutent le garage intégré. Les plans de cette maison ont aussi été étudiés pour répondre aux contraintes des constructions à alignement souvent imposées dans les lotissements. Le rez-de-chaussée est dédié à la pièce de vie. Notez les WC astucieusement placés sous l’escalier pour ne pas empiéter sur le salon. 4 chambres et 2 salles-de-bain prennent place à l’étage.
- Surface habitable : 108,28 m2
- Rez-de-chaussée : 47,86 m2
- Étage : 60,42 m2
- Combles perdus
- Emprise au sol : 79,38 m2
- Maison avec étage
- Nombre de pièces : 5
- Chambres : 4
- Garage : 15,05 m2
- SdB / SdE : 2
- WC : 2
- Toits 2 pentes
- Architecture classique
- Enduit 2 teintes au choix
- Box domotique Tahoma
Principes constructifs, équipes, éco-matériaux, finitions soignées, SAV et garanties de résultats, tout ne se vaut pas !
Plan de maison neuve et procédé constructif conformes à la RE 2020.
Toutes nos maisons neuves sont contrôlées en fin de chantier par un organisme accrédité COFRAC qui délivre une attestation thermique et un DPE certifié.
Parce que vous n’avez pas tous les mêmes besoins, ni les mêmes goûts, tous les plans de nos maisons sont modifiables. Vous pouvez choisir de les construire tels quels ou de vous en inspirer librement. Nous construisons également des maisons sur mesure : venez avec vos idées ou vos plans !
Caractérisées par son plan en L, la maison LOBELIA est construite sur deux niveaux, avec des combles aménageables et/ou aménagés. Sa toiture très découpée lui donne une forte personnalité. Au rez-de-chaussée, le garage intégré est prolongé par un cellier qui donne dans la cuisine. La pièce de vie, incluant la cuisine entièrement ouverte, totalise plus de 57 m², auxquels s’ajoutent une chambre et sa salle d’eau attenante. Vous pouvez visiter ce modèle de maison à Saint-Saturnin près du Mans. Cette maison exposition, dotée d’une fenêtre triangulaire qui souligne le pignon, est entièrement aménagée et vous donnera un bel aperçu de la qualité des constructions Maisons Lelièvre.
- Surface habitable : 126,31 m2
- Rez-de-chaussée : 81,90 m2
- Étage : 44,41 m2
- Combles aménagés
- Emprise au sol : 113,46 m2
- Maison avec étage
- Nombre de pièces : 5
- Chambres : 4
- Garage : 13,91 m2
- SdB / SdE : 2
- WC : 2
- Porche
- Architecture classique
- Enduit 2 teintes au choix
- Box domotique Tahoma
Principes constructifs, équipes, éco-matériaux, finitions soignées, SAV et garanties de résultats, tout ne se vaut pas !
Plan de maison neuve et procédé constructif conformes à la RE 2020.
Toutes nos maisons neuves sont contrôlées en fin de chantier par un organisme accrédité COFRAC qui délivre une attestation thermique et un DPE certifié.
Parce que vous n’avez pas tous les mêmes besoins, ni les mêmes goûts, tous les plans de nos maisons sont modifiables. Vous pouvez choisir de les construire tels quels ou de vous en inspirer librement. Nous construisons également des maisons sur mesure : venez avec vos idées ou vos plans !
Empreinte d’un classicisme aussi certain qu’intemporel, cette maison de ville fait l’impasse sur le garage pour privilégier les espaces de vie. Sa porte d’entrée à double battant, dont vous choisirez librement la couleur et le détail, lui confère une certaine solennité. Avec une emprise au sol assez réduite, moins 96 m², ce plan de maison permet de conserver un bel espace de jardin même sur un petit terrain en ville, et ce, sans rien rogner sur la surface habitable : 157 m². Les pièces à l’étage, 4 chambres et une salle de bain spacieuse, ne sont pas mansardées puisqu’il s’agit bel et bien d’une maison à étage et non d’une maison à combles aménagées. Au rez-de-chaussée, la pièce de vie totalise près de 56 m² et chaque mètre carré est optimisé : les WC sont même installés sous l’escalier. La suite parentale du rez-de-chaussée peut, selon les modes de vie et les besoins, se convertir en un ou deux bureaux.
L’AVEZ VOUS NOTÉ ?
Double porte d’entrée
Salle de bain spacieuse à l’étage de près de 10 m²
Palier de près de 12 m² à l’étage
Un cellier spacieux accessible par la cuisine et le jardin
- Surface habitable : 157,90 m2
- Rez-de-chaussée : 79,77 m2
- Étage : 77,72 m2
- Combles perdus
- Emprise au sol : 95,52 m2
- Maison avec étage
- Nombre de pièces : 6
- Chambres : 5
- SdB / SdE : 2
- WC : 2
- Toits 3 et 4 pentes
- Architecture classique
- Enduit 2 teintes au choix
- Box domotique Tahoma
Principes constructifs, équipes, éco-matériaux, finitions soignées, SAV et garanties de résultats, tout ne se vaut pas !
Plan de maison neuve et procédé constructif conformes à la RE 2020.
Toutes nos maisons neuves sont contrôlées en fin de chantier par un organisme accrédité COFRAC qui délivre une attestation thermique et un DPE certifié.
Parce que vous n’avez pas tous les mêmes besoins, ni les mêmes goûts, tous les plans de nos maisons sont modifiables. Vous pouvez choisir de les construire tels quels ou de vous en inspirer librement. Nous construisons également des maisons sur mesure : venez avec vos idées ou vos plans !
Mirabilis est une maison aux lignes traditionnelles, à l’allure cossue et aux dimensions généreuses. Cette maison est conçue dans l’esprit des maisons de famille d’antan. Son immense pièce de vie au rez-de-chaussée approche les 60 m², de quoi envisager de belles tablées et des moments festifs. La suite parentale, imaginée comme un véritable appartement privé en rez-de-chaussée, est très bien isolé de la pièce commune et inclut dressing et salle de bain. Le plan de cette maison propose 166 m² de surface habitable, cinq chambres dont une suite parentale, une mezzanine de 17 m², un large dressing et une grande salle de bain à l’étage. Les volets bois qui soulignent l’esthétique classique de la maison sont une proposition que vous serez libre de conserver ou de remplacer par des volets motorisés…
L’AVEZ VOUS NOTÉ ?
4 chambres à l’étage de 12,30 m² de surface moyenne
Salle de bain spacieuse à l’étage
Mezzanine de 17 m²
- Surface habitable : 166,53 m2
- Rez-de-chaussée : 84,43 m2
- Étage : 82,10 m2
- Combles perdus
- Emprise au sol : 100,80 m2
- Maison avec étage
- Nombre de pièces : 6
- Chambres : 5
- SdB / SdE : 2
- WC : 2
- Toits 4 pentes
- Architecture classique
- Enduit 2 teintes au choix
- Box domotique Tahoma
Principes constructifs, équipes, éco-matériaux, finitions soignées, SAV et garanties de résultats, tout ne se vaut pas !
Plan de maison neuve et procédé constructif conformes à la RE 2020.
Toutes nos maisons neuves sont contrôlées en fin de chantier par un organisme accrédité COFRAC qui délivre une attestation thermique et un DPE certifié.
Parce que vous n’avez pas tous les mêmes besoins, ni les mêmes goûts, tous les plans de nos maisons sont modifiables. Vous pouvez choisir de les construire tels quels ou de vous en inspirer librement. Nous construisons également des maisons sur mesure : venez avec vos idées ou vos plans !
Cette maison à l’allure classique soigne sa façade : rythme de la toiture, fenêtre en lucarne, œil de bœuf ou fenêtre en demi-lune, sans oublier sa large baie vitrée. Les plans intérieurs de cette maison à étage incluent de base deux suites parentales, dont l’une de plus de 25 m², ainsi qu’un grand bureau auquel s’ajoute 2 chambres de belles dimensions, le tout sans rien enlever à l’espace de vie qui se déploie sur 52 m² au rez-de-chaussée. Ce modèle, qui fait partie de nos grands classiques, se prête bien à vos demandes de personnalisation, n’hésitez pas à interroger les conseillers Maisons Lelièvre. La maison exposition de Nogent-le-Phaye (Eure-etLoire) est une variante du plan de maison SALVIA, rendez-nous visite et faites le tour du propriétaire.
- Surface habitable : 136,68 m2
- Rez-de-chaussée : 77,32 m2
- Étage : 59,36 m2
- Combles aménagés
- Emprise au sol : 135,10 m2
- Maison avec étage
- Nombre de pièces : 6
- Chambres : 4
- Garage : 37,57 m2
- SdB / SdE : 3
- WC : 2
- Toits 2 pentes
- Architecture classique
- Enduit 2 teintes au choix
- Box domotique Tahoma
Principes constructifs, équipes, éco-matériaux, finitions soignées, SAV et garanties de résultats, tout ne se vaut pas !
Plan de maison neuve et procédé constructif conformes à la RE 2020.
Toutes nos maisons neuves sont contrôlées en fin de chantier par un organisme accrédité COFRAC qui délivre une attestation thermique et un DPE certifié.
Parce que vous n’avez pas tous les mêmes besoins, ni les mêmes goûts, tous les plans de nos maisons sont modifiables. Vous pouvez choisir de les construire tels quels ou de vous en inspirer librement. Nous construisons également des maisons sur mesure : venez avec vos idées ou vos plans !
L’extérieur de cette maison joue les imbrications de volumes avec une certaine audace. Son architecture dynamique peut être soulignée par un revêtement en pierres de parements dans l’entrée. La pièce de vie, près de 55 m² en forme de L, s’achève avec élégance sur un bow-window, l’espace sous plafond qui le surplombe s’ouvre jusqu’au toit de la maison. Les 4 chambres sont vastes et deux d’entre elles bénéficient d’un bel éclairage naturel puisqu’elles sont équipées de grandes baies vitrées. Le pallier de l’étage peut être aménagé en bureau. Le garage accolé, livré en chape lisse bien-sûr, inclut 18 m² combles aménageables à l’étage.
L’AVEZ VOUS NOTÉ ?
Combles aménageables de 18 m²
Palier à l’étage de près de 8 m² pouvant devenir un bureau
Stellaria se décline de 138 à 171 m² avec 4 ou 5 chambres
- Surface habitable : 138,01 m2
- Rez-de-chaussée : 87,11 m2
- Étage : 50,90 m2
- Combles aménagés
- Emprise au sol : 135,27 m2
- Maison avec étage
- Nombre de pièces : 5
- Chambres : 4
- Garage : 23,78 m2
- SdB / SdE : 2
- WC : 2
- Toits 2 pentes
- Porche
- Architecture classique
- Enduit 2 teintes au choix
- Box domotique Tahoma
Principes constructifs, équipes, éco-matériaux, finitions soignées, SAV et garanties de résultats, tout ne se vaut pas !
Plan de maison neuve et procédé constructif conformes à la RE 2020.
Toutes nos maisons neuves sont contrôlées en fin de chantier par un organisme accrédité COFRAC qui délivre une attestation thermique et un DPE certifié.
Parce que vous n’avez pas tous les mêmes besoins, ni les mêmes goûts, tous les plans de nos maisons sont modifiables. Vous pouvez choisir de les construire tels quels ou de vous en inspirer librement. Nous construisons également des maisons sur mesure : venez avec vos idées ou vos plans !
Ce plan de maison contemporaine, loin des parallélépipèdes qui caractérisent souvent les maisons modernes, fait preuve d’une forte personnalité architecturale et ose les ruptures géométriques. Trapèzes et formes triangulaires imbriquées créent une façade atypique, les espaces de vie à intérieur se dessinent avec la même intensité. Cette maison contemporaine aux combles entièrement aménagés affiche quasiment 140 m² habitables, dont une grande pièce de vie qui épouse la forme d’un W et dont les murs sont équipés de 3 grandes baies vitrées coulissantes. Le plan prévoit également 2 belles suites parentales, celle de l’étage se déploie sur près de 30 m². Le pallier du deuxième niveau s’ouvre sur un balcon maçonné.
L’AVEZ VOUS NOTÉ ?
Une pièce de vie traversante de près de 50 m²
Un balcon
Une suite parentale en rez-de-chaussée
Un cellier spacieux accessible par le garage
Une suite parentale de près de 30 m² à l’étage
- Surface habitable : 139,06 m2
- Rez-de-chaussée : 76,79 m2
- Étage : 62,27 m2
- Combles aménagés
- Emprise au sol : 137,21 m2
- Maison avec étage
- Nombre de pièces : 5
- Chambres : 4
- Garage : 19,19 m2
- SdB / SdE : 3
- WC : 2
- Porche
- Architecture moderne
- Enduit 2 teintes au choix
- Box domotique Tahoma
Principes constructifs, équipes, éco-matériaux, finitions soignées, SAV et garanties de résultats, tout ne se vaut pas !
Plan de maison neuve et procédé constructif conformes à la RE 2020.
Toutes nos maisons neuves sont contrôlées en fin de chantier par un organisme accrédité COFRAC qui délivre une attestation thermique et un DPE certifié.
Parce que vous n’avez pas tous les mêmes besoins, ni les mêmes goûts, tous les plans de nos maisons sont modifiables. Vous pouvez choisir de les construire tels quels ou de vous en inspirer librement. Nous construisons également des maisons sur mesure : venez avec vos idées ou vos plans !
Indéniablement de style cubiste, cette maison contemporaine à toit plat joue avec succès l’imbrication de multiples parallélépipèdes et évite l’écueil de la froideur. Sa surface habitable s’élève à 194 m² et elle ne comptabilise pas moins de 19 ouvertures sur l’extérieur. Le salon de 43 m² est séparé de la cuisine par deux portes à galandage permettant d’ouvrir et de fermer l’espace, selon l’envie de partager, ou non, les coulisses des repas. Conception haut de gamme et nombreux aménagements soignés sont au rendez-vous pour cette vaste maison qui compte notamment deux suites parentales spacieuses de 21 m² et 27 m². Les deux autres chambres de l’étage ne sont pas en reste et disposent chacune d’un dressing privé équipé d’une porte coulissante à galandage, elles partageant une salle de bain lumineuse. Témoignant de l’attention porté à l’articulation des espaces privés et communs, le plan de l’étage de cette maison prévoit une grande mezzanine, 27 m², un espace à investir, pourquoi pas, en salon bis, bibliothèque, espace multimédia… Comme tous modèles de Maisons Lelièvre, vous pouvez nous demander de modifier les plans, un peu, beaucoup, complètement ou de construire la maison telle quelle.
L’AVEZ VOUS NOTÉ ?
Deux suites parentales
Un cellier spacieux accessible par le garage et la cuisine
Une mezzanine de 27 m²
Un vestiaire
Un garage intégré
- Surface habitable : 194,12 m2
- Rez-de-chaussée : 95,89 m2
- Étage : 98,23 m2
- Combles perdus
- Emprise au sol : 140,78 m2
- Maison avec étage
- Nombre de pièces : 6
- Chambres : 4
- Garage : 22,24 m2
- SdB / SdE : 3
- WC : 2
- Toit plat
- Porche
- Architecture moderne
- Enduit 2 teintes au choix
- Box domotique Tahoma
Principes constructifs, équipes, éco-matériaux, finitions soignées, SAV et garanties de résultats, tout ne se vaut pas !
Plan de maison neuve et procédé constructif conformes à la RE 2020.
Toutes nos maisons neuves sont contrôlées en fin de chantier par un organisme accrédité COFRAC qui délivre une attestation thermique et un DPE certifié.
Parce que vous n’avez pas tous les mêmes besoins, ni les mêmes goûts, tous les plans de nos maisons sont modifiables. Vous pouvez choisir de les construire tels quels ou de vous en inspirer librement. Nous construisons également des maisons sur mesure : venez avec vos idées ou vos plans !
Beaucoup d’allure pour cette maison aux façades découpées. Des ouvertures triangulaires en harmonie avec les pentes du toit, une gestion originale des espaces et des volumes. La pièce de vie s’ouvre sur le jardin avec 4 baies vitrées. Son architecture intérieure casse les angles et joue la carte des niches, un modèle de maison qui séduira ceux qui ne sentent pas à l’aise dans les espaces rectilignes et trop dépouillés. Le pallier qui dessert les 3 chambres de l’étage s’ouvre sur un espace bureau assez intimiste. En cas de besoin, plus de 16 m² de combles aménageables sont disponibles au-dessus du garage et déjà accessibles par une porte à l’étage. À noter : les enduits sont travaillés façon bardage bois. Chez nous la dimension pratique ne cède rien à l’esthétique. C’est vous qui choisissez les teintes : les goûts et les couleurs, ça ne se discute pas ! Si vous préférez le bardage bois, l’option est bien-sûr disponible.
- Surface habitable : 153,61 m2
- Rez-de-chaussée : 90,70 m2
- Étage : 62,91 m2
- Combles aménagés
- Emprise au sol : 131,47 m2
- Maison avec étage
- Nombre de pièces : 6
- Chambres : 4
- Garage : 16,86 m2
- SdB / SdE : 2
- WC : 2
- Porche
- Architecture moderne
- Enduit 2 teintes au choix
- Box domotique Tahoma
Principes constructifs, équipes, éco-matériaux, finitions soignées, SAV et garanties de résultats, tout ne se vaut pas !
Plan de maison neuve et procédé constructif conformes à la RE 2020.
Toutes nos maisons neuves sont contrôlées en fin de chantier par un organisme accrédité COFRAC qui délivre une attestation thermique et un DPE certifié.
Parce que vous n’avez pas tous les mêmes besoins, ni les mêmes goûts, tous les plans de nos maisons sont modifiables. Vous pouvez choisir de les construire tels quels ou de vous en inspirer librement. Nous construisons également des maisons sur mesure : venez avec vos idées ou vos plans !
De vastes baies vitrées ouvertes sur l’extérieur, cette maison contemporaine à l’allure élancée accueille généreusement la lumière. Un effet de transparences séduisant pour profiter du jardin toute l’année ! Un toit plat qui s’avance sur la façade en brise soleil pour les périodes les plus chaudes des jours d’été vient ajouter à la modernité de cette architecture. Parmi les plus grandes maisons de nos gammes, le modèle Arona totalise plus de 170 m² habitables. À noter le grand garage accolé qui offre un accès direct au jardin et au cellier. Parce qu’on ne saurait dépareiller les façades de nos maisons, ni enlaidir vos intérieurs, tous les coffres de volets roulants électriques sont invisibles.
- Surface habitable : 171,15 m2
- Rez-de-chaussée : 92,14 m2
- Étage : 79,01 m2
- Combles perdus
- Emprise au sol : 140,43 m2
- Maison avec étage
- Nombre de pièces : 5
- Chambres : 4
- Garage : 26,06 m2
- SdB / SdE : 3
- WC : 2
- Toit plat
- Architecture moderne
- Enduit 2 teintes au choix
- Box domotique Tahoma
Principes constructifs, équipes, éco-matériaux, finitions soignées, SAV et garanties de résultats, tout ne se vaut pas !
Plan de maison neuve et procédé constructif conformes à la RE 2020.
Toutes nos maisons neuves sont contrôlées en fin de chantier par un organisme accrédité COFRAC qui délivre une attestation thermique et un DPE certifié.
Parce que vous n’avez pas tous les mêmes besoins, ni les mêmes goûts, tous les plans de nos maisons sont modifiables. Vous pouvez choisir de les construire tels quels ou de vous en inspirer librement. Nous construisons également des maisons sur mesure : venez avec vos idées ou vos plans !
Parmi les plus grandes maisons de la gamme Maisons Lelièvre : la surface habitable de cette maison contemporaine monte à de plus de 180 m² et sa pièce de vie atteint les 65 m² ! Elle cache, derrière sa façade bien proportionnée, de beaux volumes et un agencement intérieur très contemporain. La façade côté jardin est aussi réussie et travaillée que la façade côté rue. À l’étage, pour desservir les 3 chambres, se déplie un grand espace mezzanine. On y trouve également une salle de bain très lumineuse qui s’offre une vue panoramique sur l’extérieur, grâce à deux belles fenêtres horizontales disposées en angle. Vous pouvez visiter cette maison neuve de fond en comble puisqu’elle a été construite au Domexpo de Baillet-Moisselles (95). Une belle occasion de découvrir avec quel soin nous construisons les maisons que vous habiterez.
- Surface habitable : 180,17 m2
- Rez-de-chaussée : 94,96 m2
- Étage : 85,21 m2
- Combles perdus
- Emprise au sol : 138,88 m2
- Maison avec étage
- Nombre de pièces : 5
- Chambres : 4
- Garage : 18,76 m2
- SdB / SdE : 3
- WC : 2
- Toit plat
- Porche
- Architecture moderne
- Enduit 2 teintes au choix
- Box domotique Tahoma
Principes constructifs, équipes, éco-matériaux, finitions soignées, SAV et garanties de résultats, tout ne se vaut pas !
Plan de maison neuve et procédé constructif conformes à la RE 2020.
Toutes nos maisons neuves sont contrôlées en fin de chantier par un organisme accrédité COFRAC qui délivre une attestation thermique et un DPE certifié.
Parce que vous n’avez pas tous les mêmes besoins, ni les mêmes goûts, tous les plans de nos maisons sont modifiables. Vous pouvez choisir de les construire tels quels ou de vous en inspirer librement. Nous construisons également des maisons sur mesure : venez avec vos idées ou vos plans !
Plus de 124 m² habitables et un plan de maison optimisé. Aucune place n’est perdue, l’escalier est judicieusement pensé pour ne pas empiéter sur la grande pièce de vie. Les espaces nuits sont bien séparés pour le confort de tous les occupants. Une très belle suite parentale au rez-de-chaussée dans l’aile droite et 3 chambres à l’étage. Plancher béton, bien-sûr, pour l’étage comme pour le rez-de-chaussée. Côté architecture, la maison Calluna ne manque pas d’audace, les niveaux multiples de sa toiture se combinent harmonieusement avec la courbe de sa façade et le porche à toit plat qui prolonge le garage.
- Surface habitable : 124,68 m2
- Rez-de-chaussée : 82,44 m2
- Étage : 42,24 m2
- Combles aménagés
- Emprise au sol : 122,30 m2
- Maison avec étage
- Nombre de pièces : 5
- Chambres : 4
- Garage : 17,37 m2
- SdB / SdE : 2
- WC : 2
- Porche
- Architecture moderne
- Enduit 2 teintes au choix
- Box domotique Tahoma
Principes constructifs, équipes, éco-matériaux, finitions soignées, SAV et garanties de résultats, tout ne se vaut pas !
Plan de maison neuve et procédé constructif conformes à la RE 2020.
Toutes nos maisons neuves sont contrôlées en fin de chantier par un organisme accrédité COFRAC qui délivre une attestation thermique et un DPE certifié.
Parce que vous n’avez pas tous les mêmes besoins, ni les mêmes goûts, tous les plans de nos maisons sont modifiables. Vous pouvez choisir de les construire tels quels ou de vous en inspirer librement. Nous construisons également des maisons sur mesure : venez avec vos idées ou vos plans !
Les hautes façades de cette maison neuve, combinées à son toit 4 pentes, confèrent à ce modèle une allure moderne et assez inédite. Les plans de cette maison offrent de beaux espaces en phase avec les modes de vie actuels. La pièce à vivre, entièrement décloisonnée, occupe la quasi-totalité du rez-de-chaussée et propose un large accès au jardin. Impasse est faite sur la traditionnelle chambre du rez-de-chaussée : tout le monde n’a pas les mêmes modes vie et nous le prenons en compte. Cette maison dispose de 4 chambres à l’étage, qui peuvent se réinventer comme autant d’espaces de travail à la maison. Comme sur toutes nos maisons à étages : le plancher supérieur est lui-aussi en béton. Pas question de lésiner sur votre confort acoustique. À noter : un beau balcon accessible directement par les chambres côté jardin et la terrasse privative, au-dessus du garage, qui vient prolonger la suite parentale.
- Surface habitable : 131,26 m2
- Rez-de-chaussée : 60,71 m2
- Étage : 70,55 m2
- Combles perdus
- Emprise au sol : 97,45 m2
- Maison avec étage
- Nombre de pièces : 5
- Chambres : 4
- Garage : 20,11 m2
- SdB / SdE : 2
- WC : 3
- Toits 4 pentes
- Porche
- Architecture moderne
- Enduit 2 teintes au choix
- Box domotique Tahoma
Principes constructifs, équipes, éco-matériaux, finitions soignées, SAV et garanties de résultats, tout ne se vaut pas !
Plan de maison neuve et procédé constructif conformes à la RE 2020.
Toutes nos maisons neuves sont contrôlées en fin de chantier par un organisme accrédité COFRAC qui délivre une attestation thermique et un DPE certifié.
Parce que vous n’avez pas tous les mêmes besoins, ni les mêmes goûts, tous les plans de nos maisons sont modifiables. Vous pouvez choisir de les construire tels quels ou de vous en inspirer librement. Nous construisons également des maisons sur mesure : venez avec vos idées ou vos plans !
Une architecture séduisante et des lignes élégantes pour cette maison contemporaine qui combine toit plat et toiture arrondie. Côté intérieur, de l’espace et de la lumière à revendre ! Cette maison propose, dans un esprit loft, un plan atypique avec plafond à plus de 4 mètres de hauteur dans l’espace salon-séjour, le tout éclairé par 2 immenses baies vitrées qui se déploient sur les 2 niveaux. L’étage est entièrement dévolu à la suite parentale qui comprend un dressing de belle dimension et une salle-d’eau. Le garage est quant à lui suffisamment vaste pour s’y réserver un espace atelier, il se prolonge par un porche qui ajoute au charme de la maison.
- Surface habitable : 139,47 m2
- Rez-de-chaussée : 105,57 m2
- Étage : 33,90 m2
- Combles perdus
- Emprise au sol : 175,15 m2
- Maison avec étage
- Nombre de pièces : 5
- Chambres : 4
- Garage : 37,88 m2
- SdB / SdE : 2
- WC : 2
- Toit plat
- Porche
- Architecture moderne
- Enduit 2 teintes au choix
- Box domotique Tahoma
Principes constructifs, équipes, éco-matériaux, finitions soignées, SAV et garanties de résultats, tout ne se vaut pas !
Plan de maison neuve et procédé constructif conformes à la RE 2020.
Toutes nos maisons neuves sont contrôlées en fin de chantier par un organisme accrédité COFRAC qui délivre une attestation thermique et un DPE certifié.
Parce que vous n’avez pas tous les mêmes besoins, ni les mêmes goûts, tous les plans de nos maisons sont modifiables. Vous pouvez choisir de les construire tels quels ou de vous en inspirer librement. Nous construisons également des maisons sur mesure : venez avec vos idées ou vos plans !
Très faible emprise au sol pour cette maison compacte adaptée aux petits terrains de la région parisienne. Surmontée d’un élégant toit 4 pentes, le plan de cette maison est aussi confortable que bien pensée. Ses 4 chambres et sa belle pièce de vie lui permettent d’accueillir une grande famille (ou beaucoup d’amis). Aucun espace n’est perdu, détail qui n’en est pas un, les WC du rez-de-chaussée s’insèrent dans l’espace libre sous l’escalier afin de ne pas empiéter sur les espaces de vie. Ses performances énergie positive sont garanties même en cas d’exposition défavorable : elle produira plus d’énergie qu’elle n’en consommera ! Comme pour toutes nos maisons neuves, un DPE certifié et délivré à l’issu du chantier, attestera des performances de votre maison.
- Surface habitable : 104,54 m2
- Rez-de-chaussée : 53,26 m2
- Étage : 51,28 m2
- Combles perdus
- Emprise au sol : 66,36 m2
- Maison avec étage
- Nombre de pièces : 5
- Chambres : 4
- SdB / SdE : 2
- WC : 2
- Toits 4 pentes
- Architecture classique
- Enduit 2 teintes au choix
- Box domotique Tahoma
Principes constructifs, équipes, éco-matériaux, finitions soignées, SAV et garanties de résultats, tout ne se vaut pas !
Plan de maison neuve et procédé constructif conformes à la RE 2020.
Toutes nos maisons neuves sont contrôlées en fin de chantier par un organisme accrédité COFRAC qui délivre une attestation thermique et un DPE certifié.
Parce que vous n’avez pas tous les mêmes besoins, ni les mêmes goûts, tous les plans de nos maisons sont modifiables. Vous pouvez choisir de les construire tels quels ou de vous en inspirer librement. Nous construisons également des maisons sur mesure : venez avec vos idées ou vos plans !
Surface vitrée exceptionnelle, originalité de sa toiture à pentes multiples, 150 m² habitables, 5 chambres et un garage, cette maison a plus d’un atout pour séduire les amateurs de beaux espaces. Notez le garage prévu pour 2 voitures, pourvu à la fois d’un accès cellier et d’un accès direct au jardin. Le plan de cette maison inclut également un grand vide sur hall dans l’entrée : le plafond monte à près de 5 mètres. Les coffres de volets électriques sont, bien-sûr, comme sur toutes nos maisons, invisibles. Ils sont programmables grâce au pack domotique TaHoma qui est inclus de base sur tous nos modèles Premium. Nous tenons notre promesse énergie positive même en cas d’exposition défavorable !
- Surface habitable : 150,02 m2
- Rez-de-chaussée : 80,38 m2
- Étage : 69,64 m2
- Combles perdus
- Emprise au sol : 124,96 m2
- Maison avec étage
- Nombre de pièces : 6
- Chambres : 5
- Garage : 25,44 m2
- SdB / SdE : 3
- WC : 2
- Toits 4 pentes
- Architecture classique
- Enduit 2 teintes au choix
- Box domotique Tahoma
Principes constructifs, équipes, éco-matériaux, finitions soignées, SAV et garanties de résultats, tout ne se vaut pas !
Plan de maison neuve et procédé constructif conformes à la RE 2020.
Toutes nos maisons neuves sont contrôlées en fin de chantier par un organisme accrédité COFRAC qui délivre une attestation thermique et un DPE certifié.
Parce que vous n’avez pas tous les mêmes besoins, ni les mêmes goûts, tous les plans de nos maisons sont modifiables. Vous pouvez choisir de les construire tels quels ou de vous en inspirer librement. Nous construisons également des maisons sur mesure : venez avec vos idées ou vos plans !
Résolument contemporaine dans son architecture, cette maison neuve est aussi en avance sur son temps puisque que nous la construisons en niveau énergie positive. Plus performante qu’une maison passive, une maison à énergie positive consomme moins d’énergie qu’elle n’en produit. Conçu sur 2 niveaux, ce plan de maison propose 127 m² habitables, un beau salon-cuisine lumineux et 4 chambres. La chambre du rez-de-chaussée comprend aussi un dressing et une salle d’eau privative. Grâce à sa faible emprise au sol, seulement 87,53 m², cette maison peut s’implanter facilement sur un petit terrain en ville et en région parisienne tout en préservant l’espace du jardin.
- Surface habitable : 127,98 m2
- Rez-de-chaussée : 71,94 m2
- Étage : 56,04 m2
- Combles perdus
- Emprise au sol : 87,53 m2
- Maison avec étage
- Nombre de pièces : 5
- Chambres : 4
- SdB / SdE : 2
- WC : 2
- Toit plat
- Architecture moderne
- Enduit 2 teintes au choix
- Box domotique Tahoma
Principes constructifs, équipes, éco-matériaux, finitions soignées, SAV et garanties de résultats, tout ne se vaut pas !
Plan de maison neuve et procédé constructif conformes à la RE 2020.
Toutes nos maisons neuves sont contrôlées en fin de chantier par un organisme accrédité COFRAC qui délivre une attestation thermique et un DPE certifié.
Parce que vous n’avez pas tous les mêmes besoins, ni les mêmes goûts, tous les plans de nos maisons sont modifiables. Vous pouvez choisir de les construire tels quels ou de vous en inspirer librement. Nous construisons également des maisons sur mesure : venez avec vos idées ou vos plans !
Sous des dehors sages, ce modèle milite pour la démocratisation des maisons à énergie positive. Son prix accessible en témoigne ! Compacte sans être petite, elle vous offre tout le confort de vie de la gamme Énergie positive : plancher chauffant en rez-de-chaussée, production d’électricité par panneaux photovoltaïques, pack domotique TaHoma évolutif... Conçue pour les petits terrains, le plan de cette maison est aussi adapté aux situations mitoyennes. À noter : le retour vertical de la fenêtre de toit qui donne un cachet tout particulier à la quatrième chambre.
- Surface habitable : 96,93 m2
- Rez-de-chaussée : 55,11 m2
- Étage : 38,52 m2
- Combles aménagés
- Emprise au sol : 71,89 m2
- Maison avec étage
- Nombre de pièces : 5
- Chambres : 4
- SdB / SdE : 2
- WC : 2
- Toits 2 pentes
- Architecture classique
- Enduit 2 teintes au choix
- Box domotique Tahoma
Principes constructifs, équipes, éco-matériaux, finitions soignées, SAV et garanties de résultats, tout ne se vaut pas !
Plan de maison neuve et procédé constructif conformes à la RE 2020.
Toutes nos maisons neuves sont contrôlées en fin de chantier par un organisme accrédité COFRAC qui délivre une attestation thermique et un DPE certifié.
Parce que vous n’avez pas tous les mêmes besoins, ni les mêmes goûts, tous les plans de nos maisons sont modifiables. Vous pouvez choisir de les construire tels quels ou de vous en inspirer librement. Nous construisons également des maisons sur mesure : venez avec vos idées ou vos plans !
Ce modèle de maison très contemporaine à toit multi-pentes, au-delà de son niveau énergie positive, propose des prestations haut de gamme : 134 m² habitables dont 4 chambres, celle du rez-du-chaussée comprend une salle d’eau privative équipée d’une douche, les plans incluent déjà les zones de cloisonnement pour vos placards intégrés. À l’étage, l’une des chambres est constituée en suite parentale de plus de 20 m² et un bel espace mezzanine permet d’envisager un bureau d’appoint, un coin bibliothèque ou un espace multimédia. À noter : les allèges vitrées sous les fenêtres de l’étage qui assurent fonction de garde-corps sans rien retirer à la vue sur l’extérieur. Les couleurs de l’enduit béton sont, bien-entendu, laissées à votre libre choix et le marquage au fer de l’enduit viendra souligner la modernité de cette maison.
- Surface habitable : 134,08 m2
- Rez-de-chaussée : 65,41 m2
- Étage : 68,67 m2
- Combles perdus
- Emprise au sol : 103,35 m2
- Maison avec étage
- Nombre de pièces : 6
- Chambres : 4
- Garage : 14,28 m2
- SdB / SdE : 3
- WC : 2
- Toits 3 et 4 pentes
- Porche
- Architecture moderne
- Enduit 2 teintes au choix
- Box domotique Tahoma
Principes constructifs, équipes, éco-matériaux, finitions soignées, SAV et garanties de résultats, tout ne se vaut pas !
Plan de maison neuve et procédé constructif conformes à la RE 2020.
Toutes nos maisons neuves sont contrôlées en fin de chantier par un organisme accrédité COFRAC qui délivre une attestation thermique et un DPE certifié.
Parce que vous n’avez pas tous les mêmes besoins, ni les mêmes goûts, tous les plans de nos maisons sont modifiables. Vous pouvez choisir de les construire tels quels ou de vous en inspirer librement. Nous construisons également des maisons sur mesure : venez avec vos idées ou vos plans !
Les plans de la maison Tilia ont été imaginés pour rendre leur prix accessible au moment de la construction tout en offrant de réelles possibilités d’évolution à plus ou moins brève échéance, et ce, grâce à une surface importante de combles aménageables à l’étage. À partir de 83 m² habitables, ce plan de maison neuve se décline en version 3 chambres ou 4 chambres auxquels s’ajoute un garage accolé. Petite ou grande surface, vous bénéficiez des prestations de qualité et des finitions soignées qui font la réputation des Maisons Lelièvre : volets électriques intégrés au bâti, porte de garage motorisée et isolée, radiateur sèche serviette dans la salle de bain, plancher béton à l’étage comme du rez-de-chaussée, écran sous toiture, garage et chambres livrés en chape lisse.
- Surface habitable : 83,19 m2
- Rez-de-chaussée : 65,11 m2
- Étage : 18,08 m2
- Combles aménagés
- Emprise au sol : 101,64 m2
- Maison avec étage
- Nombre de pièces : 4
- Chambres : 3
- Garage : 20,19 m2
- SdB / SdE : 2
- WC : 2
- Toits 2 pentes
- Porche
- Architecture classique
- Enduit 2 teintes au choix
- Box domotique Tahoma
Principes constructifs, équipes, éco-matériaux, finitions soignées, SAV et garanties de résultats, tout ne se vaut pas !
Plan de maison neuve et procédé constructif conformes à la RE 2020.
Toutes nos maisons neuves sont contrôlées en fin de chantier par un organisme accrédité COFRAC qui délivre une attestation thermique et un DPE certifié.
Parce que vous n’avez pas tous les mêmes besoins, ni les mêmes goûts, tous les plans de nos maisons sont modifiables. Vous pouvez choisir de les construire tels quels ou de vous en inspirer librement. Nous construisons également des maisons sur mesure : venez avec vos idées ou vos plans !
Les plans de la maison Tilia ont été imaginés pour rendre leur prix accessible au moment de la construction tout en offrant de réelles possibilités d’évolution à plus ou moins brève échéance, et ce, grâce à une surface importante de combles aménageables à l’étage. À partir de 83 m² habitables, ce plan de maison neuve se décline en version 3 chambres ou 4 chambres auxquels s’ajoute un garage accolé. Petite ou grande surface, vous bénéficiez des prestations de qualité et des finitions soignées qui font la réputation des Maisons Lelièvre : volets électriques intégrés au bâti, porte de garage motorisée et isolée, radiateur sèche serviette dans la salle de bain, plancher béton à l’étage comme du rez-de-chaussée, écran sous toiture, garage et chambres livrés en chape lisse.
- Surface habitable : 99,33 m2
- Rez-de-chaussée : 65,11 m2
- Étage : 34,22 m2
- Combles aménagés
- Emprise au sol : 101,64 m2
- Maison avec étage
- Nombre de pièces : 5
- Chambres : 4
- Garage : 20,19 m2
- SdB / SdE : 2
- WC : 2
- Toits 2 pentes
- Porche
- Architecture classique
- Enduit 2 teintes au choix
- Box domotique Tahoma
Principes constructifs, équipes, éco-matériaux, finitions soignées, SAV et garanties de résultats, tout ne se vaut pas !
Plan de maison neuve et procédé constructif conformes à la RE 2020.
Toutes nos maisons neuves sont contrôlées en fin de chantier par un organisme accrédité COFRAC qui délivre une attestation thermique et un DPE certifié.
Parce que vous n’avez pas tous les mêmes besoins, ni les mêmes goûts, tous les plans de nos maisons sont modifiables. Vous pouvez choisir de les construire tels quels ou de vous en inspirer librement. Nous construisons également des maisons sur mesure : venez avec vos idées ou vos plans !
Compact et adapté à un tissu urbain dense, ce modèle de maison neuve présente une façade originale dans laquelle s’imbriquent deux pignons qui jouent l’avancé et le retrait. À L’étage, l’une des chambres est équipée d’une fenêtre en verrière d’angle qui apporte un cachet particulier à la façade et offre une vue dégagée sur l’extérieur. Cette maison de type traditionnelle est disponible en plusieurs configurations, la version 3 chambres laisse encore 33 m² de combles aménageables, accessibles et déjà équipées de fenêtres, pour faire évoluer facilement votre maison en temps voulu. Vous pouvez également choisir d’emblée d’aménager tout ou partie des combles. Zéro mètre carré perdu : les plans de cette maison ont été étudiés avec le plus grand soin pour que vous puissiez habiter chaque mètre carré, ainsi le cellier est équipé d’une porte coulissante escamotable dans la cloison et les WC du rez-de-chaussée sont installés sous l’escalier.
L’AVEZ VOUS NOTÉ ?
Combles aménageables de 33 m² accessible avec deux lucarnes
Tulipa se décline de 95 à 126 m² avec 3, 4 ou 5 chambres
- Surface habitable : 95,46 m2
- Rez-de-chaussée : 64,85 m2
- Étage : 30,61 m2
- Combles aménagés
- Emprise au sol : 99,19 m2
- Maison avec étage
- Nombre de pièces : 5
- Chambres : 3
- Garage : 17,50 m2
- SdB / SdE : 2
- WC : 2
- Toits 2 pentes
- Architecture classique
- Enduit 2 teintes au choix
- Box domotique Tahoma
Principes constructifs, équipes, éco-matériaux, finitions soignées, SAV et garanties de résultats, tout ne se vaut pas !
Plan de maison neuve et procédé constructif conformes à la RE 2020.
Toutes nos maisons neuves sont contrôlées en fin de chantier par un organisme accrédité COFRAC qui délivre une attestation thermique et un DPE certifié.
Parce que vous n’avez pas tous les mêmes besoins, ni les mêmes goûts, tous les plans de nos maisons sont modifiables. Vous pouvez choisir de les construire tels quels ou de vous en inspirer librement. Nous construisons également des maisons sur mesure : venez avec vos idées ou vos plans !
Compact et adapté à un tissu urbain dense, ce modèle de maison neuve présente une façade originale dans laquelle s’imbriquent deux pignons qui jouent l’avancé et le retrait. À L’étage, l’une des chambres est équipée d’une fenêtre en verrière d’angle qui apporte un cachet particulier à la façade et offre une vue dégagée sur l’extérieur. Cette maison de type traditionnelle est disponible en plusieurs configurations, la version 3 chambres laisse encore 33 m² de combles aménageables, accessibles et déjà équipées de fenêtres, pour faire évoluer facilement votre maison en temps voulu. Vous pouvez également choisir d’emblée d’aménager tout ou partie des combles. Zéro mètre carré perdu : les plans de cette maison ont été étudiés avec le plus grand soin pour que vous puissiez habiter chaque mètre carré, ainsi le cellier est équipé d’une porte coulissante escamotable dans la cloison et les WC du rez-de-chaussée sont installés sous l’escalier.
L’AVEZ VOUS NOTÉ ?
Combles aménageables de 33 m² accessible avec deux lucarnes
Tulipa se décline de 95 à 126 m² avec 3, 4 ou 5 chambres
- Surface habitable : 125,10 m2
- Rez-de-chaussée : 64,85 m2
- Étage : 60,25 m2
- Combles aménagés
- Emprise au sol : 99,19 m2
- Maison avec étage
- Nombre de pièces : 6
- Chambres : 4
- Garage : 17,50 m2
- SdB / SdE : 3
- WC : 2
- Toits 2 pentes
- Architecture classique
- Enduit 2 teintes au choix
- Box domotique Tahoma
Principes constructifs, équipes, éco-matériaux, finitions soignées, SAV et garanties de résultats, tout ne se vaut pas !
Plan de maison neuve et procédé constructif conformes à la RE 2020.
Toutes nos maisons neuves sont contrôlées en fin de chantier par un organisme accrédité COFRAC qui délivre une attestation thermique et un DPE certifié.
Parce que vous n’avez pas tous les mêmes besoins, ni les mêmes goûts, tous les plans de nos maisons sont modifiables. Vous pouvez choisir de les construire tels quels ou de vous en inspirer librement. Nous construisons également des maisons sur mesure : venez avec vos idées ou vos plans !
Compact et adapté à un tissu urbain dense, ce modèle de maison neuve présente une façade originale dans laquelle s’imbriquent deux pignons qui jouent l’avancé et le retrait. À L’étage, l’une des chambres est équipée d’une fenêtre en verrière d’angle qui apporte un cachet particulier à la façade et offre une vue dégagée sur l’extérieur. Cette maison de type traditionnelle est disponible en plusieurs configurations, la version 3 chambres laisse encore 33 m² de combles aménageables, accessibles et déjà équipées de fenêtres, pour faire évoluer facilement votre maison en temps voulu. Vous pouvez également choisir d’emblée d’aménager tout ou partie des combles. Zéro mètre carré perdu : les plans de cette maison ont été étudiés avec le plus grand soin pour que vous puissiez habiter chaque mètre carré, ainsi le cellier est équipé d’une porte coulissante escamotable dans la cloison et les WC du rez-de-chaussée sont installés sous l’escalier.
L’AVEZ VOUS NOTÉ ?
Combles aménageables de 33 m² accessible avec deux lucarnes
Tulipa se décline de 95 à 126 m² avec 3, 4 ou 5 chambres
- Surface habitable : 126,48 m2
- Rez-de-chaussée : 64,85 m2
- Étage : 61,63 m2
- Combles aménagés
- Emprise au sol : 99,19 m2
- Maison avec étage
- Nombre de pièces : 7
- Chambres : 5
- Garage : 17,50 m2
- SdB / SdE : 2
- WC : 2
- Toits 2 pentes
- Architecture classique
- Enduit 2 teintes au choix
- Box domotique Tahoma
Principes constructifs, équipes, éco-matériaux, finitions soignées, SAV et garanties de résultats, tout ne se vaut pas !
Plan de maison neuve et procédé constructif conformes à la RE 2020.
Toutes nos maisons neuves sont contrôlées en fin de chantier par un organisme accrédité COFRAC qui délivre une attestation thermique et un DPE certifié.
Parce que vous n’avez pas tous les mêmes besoins, ni les mêmes goûts, tous les plans de nos maisons sont modifiables. Vous pouvez choisir de les construire tels quels ou de vous en inspirer librement. Nous construisons également des maisons sur mesure : venez avec vos idées ou vos plans !
Caractérisé par son porche très dessiné, en retrait de la façade principale, et un balcon qui participe avec justesse à l’équilibre de l’architecture, ce plan de maison fait la part belle à la pièce de vie en rez-de-chaussée. L’escalier qui mène aux combles aménagés, et abrite dans le même temps les WC, est orienté de manière à éviter toute contrainte dans l’installation votre mobilier. Dans sa version 4 chambres, la maison Veronica dispose d’une très belle chambre constituée en suite à l’étage : près de 25 m² incluant dressing et salle de bain privative, de quoi imaginer un espace quasi indépendant pour des enfants qui poursuivent leurs études au domicile familial. La chambre du rez-de-chaussée, qui dispose également de sa propre salle-de-bain, est aisément convertissable en bureau. Plus de 15 m² de combles aménageables surplombent le garage et vous permettent d’agrandir, à plus ou moins brève échéance, vos espaces de vie.
L’AVEZ VOUS NOTÉ ?
Combles aménageables de 15,4 m²
Palier à l’étage de près de 11 m² pouvant devenir un espace multimédia
Deux suites parentales
Balcon
- Surface habitable : 126,66 m2
- Rez-de-chaussée : 75,20 m2
- Étage : 51,46 m2
- Combles aménagés
- Emprise au sol : 121,50 m2
- Maison avec étage
- Nombre de pièces : 5
- Chambres : 4
- Garage : 22,65 m2
- SdB / SdE : 3
- WC : 2
- Toits 2 pentes
- Porche
- Architecture classique
- Enduit 2 teintes au choix
- Box domotique Tahoma
Principes constructifs, équipes, éco-matériaux, finitions soignées, SAV et garanties de résultats, tout ne se vaut pas !
Plan de maison neuve et procédé constructif conformes à la RE 2020.
Toutes nos maisons neuves sont contrôlées en fin de chantier par un organisme accrédité COFRAC qui délivre une attestation thermique et un DPE certifié.
Parce que vous n’avez pas tous les mêmes besoins, ni les mêmes goûts, tous les plans de nos maisons sont modifiables. Vous pouvez choisir de les construire tels quels ou de vous en inspirer librement. Nous construisons également des maisons sur mesure : venez avec vos idées ou vos plans !
Caractérisé par son porche très dessiné, en retrait de la façade principale, et un balcon qui participe avec justesse à l’équilibre de l’architecture, ce plan de maison fait la part belle à la pièce de vie en rez-de-chaussée. L’escalier qui mène aux combles aménagés, et abrite dans le même temps les WC, est orienté de manière à éviter toute contrainte dans l’installation votre mobilier. Dans sa version 4 chambres, la maison Veronica dispose d’une très belle chambre constituée en suite à l’étage : près de 25 m² incluant dressing et salle de bain privative, de quoi imaginer un espace quasi indépendant pour des enfants qui poursuivent leurs études au domicile familial. La chambre du rez-de-chaussée, qui dispose également de sa propre salle-de-bain, est aisément convertissable en bureau. Plus de 15 m² de combles aménageables surplombent le garage et vous permettent d’agrandir, à plus ou moins brève échéance, vos espaces de vie.
L’AVEZ VOUS NOTÉ ?
Combles aménageables de 15,4 m²
Palier à l’étage de près de 11 m² pouvant devenir un espace multimédia
Deux suites parentales
Balcon
- Surface habitable : 126,63 m2
- Rez-de-chaussée : 75,20 m2
- Étage : 51,43 m2
- Combles aménagés
- Emprise au sol : 121,50 m2
- Maison avec étage
- Nombre de pièces : 6
- Chambres : 5
- Garage : 22,65 m2
- SdB / SdE : 2
- WC : 2
- Toits 2 pentes
- Porche
- Architecture classique
- Enduit 2 teintes au choix
- Box domotique Tahoma
Principes constructifs, équipes, éco-matériaux, finitions soignées, SAV et garanties de résultats, tout ne se vaut pas !
Plan de maison neuve et procédé constructif conformes à la RE 2020.
Toutes nos maisons neuves sont contrôlées en fin de chantier par un organisme accrédité COFRAC qui délivre une attestation thermique et un DPE certifié.
Parce que vous n’avez pas tous les mêmes besoins, ni les mêmes goûts, tous les plans de nos maisons sont modifiables. Vous pouvez choisir de les construire tels quels ou de vous en inspirer librement. Nous construisons également des maisons sur mesure : venez avec vos idées ou vos plans !
Plans de maisons individuelles 100% conformes RE 2020
La meilleure énergie, c’est celle qu’on ne consomme pas.
Plus exigeante que la RT2012, La Réglementation Environnementale 2020 limite l’impact environnemental global des constructions tout en préservant le confort des habitants. Tous nos plans et procédés constructifs sont conformes à la RE 2020.
Très bien isolée et bien exposée, une maison RE 2020 consomme peu d’énergie et garantit un niveau de confort en cas de forte chaleur. Ses besoins en énergie sont couverts par des sources non fossile. L’impact carbone des matériaux de construction entre désormais dans le calcul.