Modifiez vos plans très rapidement avec votre conseiller Maisons lelièvre [+]
Maisons modernes
Ce plan de maison contemporaine, loin des parallélépipèdes qui caractérisent souvent les maisons modernes, fait preuve d’une forte personnalité architecturale et ose les ruptures géométriques. Trapèzes et formes triangulaires imbriquées créent une façade atypique, les espaces de vie à intérieur se dessinent avec la même intensité. Cette maison contemporaine aux combles entièrement aménagés affiche quasiment 140 m² habitables, dont une grande pièce de vie qui épouse la forme d’un W et dont les murs sont équipés de 3 grandes baies vitrées coulissantes. Le plan prévoit également 2 belles suites parentales, celle de l’étage se déploie sur près de 30 m². Le pallier du deuxième niveau s’ouvre sur un balcon maçonné.
L’AVEZ VOUS NOTÉ ?
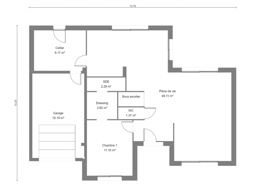
Une pièce de vie traversante de près de 50 m²
Un balcon
Une suite parentale en rez-de-chaussée
Un cellier spacieux accessible par le garage
Une suite parentale de près de 30 m² à l’étage
- Surface habitable : 139,06 m2
- Rez-de-chaussée : 76,79 m2
- Étage : 62,27 m2
- Combles aménagés
- Emprise au sol : 137,21 m2
- Maison avec étage
- Nombre de pièces : 5
- Chambres : 4
- Garage : 19,19 m2
- SdB / SdE : 3
- WC : 2
- Porche
- Architecture moderne
- Enduit 2 teintes au choix
- Box domotique Tahoma
Principes constructifs, équipes, éco-matériaux, finitions soignées, SAV et garanties de résultats, tout ne se vaut pas !
Plan de maison neuve et procédé constructif conformes à la RE 2020.
Toutes nos maisons neuves sont contrôlées en fin de chantier par un organisme accrédité COFRAC qui délivre une attestation thermique et un DPE certifié.
Parce que vous n’avez pas tous les mêmes besoins, ni les mêmes goûts, tous les plans de nos maisons sont modifiables. Vous pouvez choisir de les construire tels quels ou de vous en inspirer librement. Nous construisons également des maisons sur mesure : venez avec vos idées ou vos plans !
Indéniablement de style cubiste, cette maison contemporaine à toit plat joue avec succès l’imbrication de multiples parallélépipèdes et évite l’écueil de la froideur. Sa surface habitable s’élève à 194 m² et elle ne comptabilise pas moins de 19 ouvertures sur l’extérieur. Le salon de 43 m² est séparé de la cuisine par deux portes à galandage permettant d’ouvrir et de fermer l’espace, selon l’envie de partager, ou non, les coulisses des repas. Conception haut de gamme et nombreux aménagements soignés sont au rendez-vous pour cette vaste maison qui compte notamment deux suites parentales spacieuses de 21 m² et 27 m². Les deux autres chambres de l’étage ne sont pas en reste et disposent chacune d’un dressing privé équipé d’une porte coulissante à galandage, elles partageant une salle de bain lumineuse. Témoignant de l’attention porté à l’articulation des espaces privés et communs, le plan de l’étage de cette maison prévoit une grande mezzanine, 27 m², un espace à investir, pourquoi pas, en salon bis, bibliothèque, espace multimédia… Comme tous modèles de Maisons Lelièvre, vous pouvez nous demander de modifier les plans, un peu, beaucoup, complètement ou de construire la maison telle quelle.
L’AVEZ VOUS NOTÉ ?
Deux suites parentales
Un cellier spacieux accessible par le garage et la cuisine
Une mezzanine de 27 m²
Un vestiaire
Un garage intégré
- Surface habitable : 194,12 m2
- Rez-de-chaussée : 95,89 m2
- Étage : 98,23 m2
- Combles perdus
- Emprise au sol : 140,78 m2
- Maison avec étage
- Nombre de pièces : 6
- Chambres : 4
- Garage : 22,24 m2
- SdB / SdE : 3
- WC : 2
- Toit plat
- Porche
- Architecture moderne
- Enduit 2 teintes au choix
- Box domotique Tahoma
Principes constructifs, équipes, éco-matériaux, finitions soignées, SAV et garanties de résultats, tout ne se vaut pas !
Plan de maison neuve et procédé constructif conformes à la RE 2020.
Toutes nos maisons neuves sont contrôlées en fin de chantier par un organisme accrédité COFRAC qui délivre une attestation thermique et un DPE certifié.
Parce que vous n’avez pas tous les mêmes besoins, ni les mêmes goûts, tous les plans de nos maisons sont modifiables. Vous pouvez choisir de les construire tels quels ou de vous en inspirer librement. Nous construisons également des maisons sur mesure : venez avec vos idées ou vos plans !
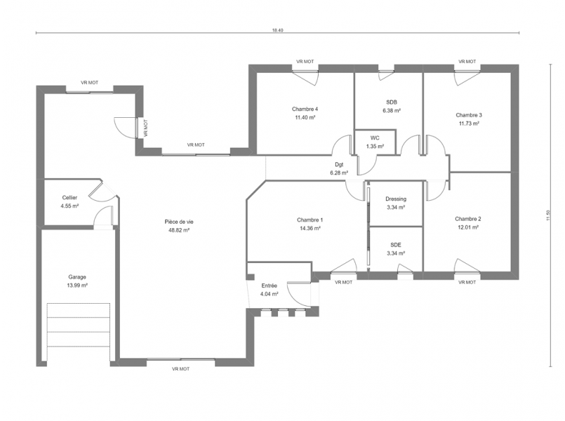
Beaucoup d’allure pour cette maison aux façades découpées. Des ouvertures triangulaires en harmonie avec les pentes du toit, une gestion originale des espaces et des volumes. La pièce de vie s’ouvre sur le jardin avec 4 baies vitrées. Son architecture intérieure casse les angles et joue la carte des niches, un modèle de maison qui séduira ceux qui ne sentent pas à l’aise dans les espaces rectilignes et trop dépouillés. Le pallier qui dessert les 3 chambres de l’étage s’ouvre sur un espace bureau assez intimiste. En cas de besoin, plus de 16 m² de combles aménageables sont disponibles au-dessus du garage et déjà accessibles par une porte à l’étage. À noter : les enduits sont travaillés façon bardage bois. Chez nous la dimension pratique ne cède rien à l’esthétique. C’est vous qui choisissez les teintes : les goûts et les couleurs, ça ne se discute pas ! Si vous préférez le bardage bois, l’option est bien-sûr disponible.
- Surface habitable : 153,61 m2
- Rez-de-chaussée : 90,70 m2
- Étage : 62,91 m2
- Combles aménagés
- Emprise au sol : 131,47 m2
- Maison avec étage
- Nombre de pièces : 6
- Chambres : 4
- Garage : 16,86 m2
- SdB / SdE : 2
- WC : 2
- Porche
- Architecture moderne
- Enduit 2 teintes au choix
- Box domotique Tahoma
Principes constructifs, équipes, éco-matériaux, finitions soignées, SAV et garanties de résultats, tout ne se vaut pas !
Plan de maison neuve et procédé constructif conformes à la RE 2020.
Toutes nos maisons neuves sont contrôlées en fin de chantier par un organisme accrédité COFRAC qui délivre une attestation thermique et un DPE certifié.
Parce que vous n’avez pas tous les mêmes besoins, ni les mêmes goûts, tous les plans de nos maisons sont modifiables. Vous pouvez choisir de les construire tels quels ou de vous en inspirer librement. Nous construisons également des maisons sur mesure : venez avec vos idées ou vos plans !
De vastes baies vitrées ouvertes sur l’extérieur, cette maison contemporaine à l’allure élancée accueille généreusement la lumière. Un effet de transparences séduisant pour profiter du jardin toute l’année ! Un toit plat qui s’avance sur la façade en brise soleil pour les périodes les plus chaudes des jours d’été vient ajouter à la modernité de cette architecture. Parmi les plus grandes maisons de nos gammes, le modèle Arona totalise plus de 170 m² habitables. À noter le grand garage accolé qui offre un accès direct au jardin et au cellier. Parce qu’on ne saurait dépareiller les façades de nos maisons, ni enlaidir vos intérieurs, tous les coffres de volets roulants électriques sont invisibles.
- Surface habitable : 171,15 m2
- Rez-de-chaussée : 92,14 m2
- Étage : 79,01 m2
- Combles perdus
- Emprise au sol : 140,43 m2
- Maison avec étage
- Nombre de pièces : 5
- Chambres : 4
- Garage : 26,06 m2
- SdB / SdE : 3
- WC : 2
- Toit plat
- Architecture moderne
- Enduit 2 teintes au choix
- Box domotique Tahoma
Principes constructifs, équipes, éco-matériaux, finitions soignées, SAV et garanties de résultats, tout ne se vaut pas !
Plan de maison neuve et procédé constructif conformes à la RE 2020.
Toutes nos maisons neuves sont contrôlées en fin de chantier par un organisme accrédité COFRAC qui délivre une attestation thermique et un DPE certifié.
Parce que vous n’avez pas tous les mêmes besoins, ni les mêmes goûts, tous les plans de nos maisons sont modifiables. Vous pouvez choisir de les construire tels quels ou de vous en inspirer librement. Nous construisons également des maisons sur mesure : venez avec vos idées ou vos plans !
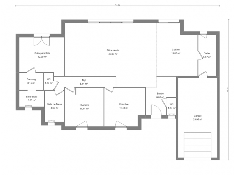
Des lignes sobres, une belle association d’enduits 2 teintes (n’oubliez pas que c’est vous qui les choisissez), cette maison contemporaine de plain-pied renouvelle ses classiques sans en avoir l’air. En y regardant de plus près, vous noterez les multiples jeux d’avancée et de retrait qui rythment les façades. Avez-vous remarqué les 3 hublots qui percent sa façade ? Cette maison neuve de plain-pied abrite 3 chambres dont 1 en suite parentale et un vaste salon/séjour de presque 40 m² qui s’ouvre largement sur le jardin grâce à 2 grandes baies vitrées coulissantes. La cuisine, 15 m² décloisonnés, s’inscrit dans le prolongement de la pièce vie.
- Surface habitable : 121,58 m2
- Rez-de-chaussée : 121,58 m2
- Combles perdus
- Emprise au sol : 170,92 m2
- Maison de plain-pied
- Nombre de pièces : 5
- Chambres : 3
- Garage : 23,96 m2
- SdB / SdE : 2
- WC : 2
- Toit plat
- Porche
- Architecture moderne
- Enduit 2 teintes au choix
- Box domotique Tahoma
Principes constructifs, équipes, éco-matériaux, finitions soignées, SAV et garanties de résultats, tout ne se vaut pas !
Plan de maison neuve et procédé constructif conformes à la RE 2020.
Toutes nos maisons neuves sont contrôlées en fin de chantier par un organisme accrédité COFRAC qui délivre une attestation thermique et un DPE certifié.
Parce que vous n’avez pas tous les mêmes besoins, ni les mêmes goûts, tous les plans de nos maisons sont modifiables. Vous pouvez choisir de les construire tels quels ou de vous en inspirer librement. Nous construisons également des maisons sur mesure : venez avec vos idées ou vos plans !
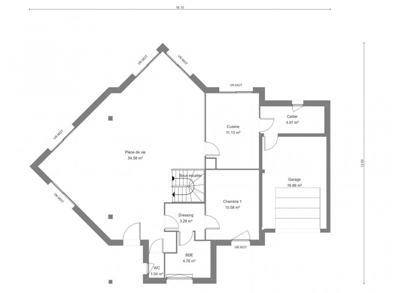
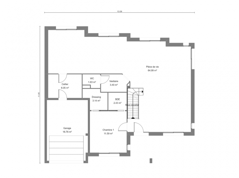
Parmi les plus grandes maisons de la gamme Maisons Lelièvre : la surface habitable de cette maison contemporaine monte à de plus de 180 m² et sa pièce de vie atteint les 65 m² ! Elle cache, derrière sa façade bien proportionnée, de beaux volumes et un agencement intérieur très contemporain. La façade côté jardin est aussi réussie et travaillée que la façade côté rue. À l’étage, pour desservir les 3 chambres, se déplie un grand espace mezzanine. On y trouve également une salle de bain très lumineuse qui s’offre une vue panoramique sur l’extérieur, grâce à deux belles fenêtres horizontales disposées en angle. Vous pouvez visiter cette maison neuve de fond en comble puisqu’elle a été construite au Domexpo de Baillet-Moisselles (95). Une belle occasion de découvrir avec quel soin nous construisons les maisons que vous habiterez.
- Surface habitable : 180,17 m2
- Rez-de-chaussée : 94,96 m2
- Étage : 85,21 m2
- Combles perdus
- Emprise au sol : 138,88 m2
- Maison avec étage
- Nombre de pièces : 5
- Chambres : 4
- Garage : 18,76 m2
- SdB / SdE : 3
- WC : 2
- Toit plat
- Porche
- Architecture moderne
- Enduit 2 teintes au choix
- Box domotique Tahoma
Principes constructifs, équipes, éco-matériaux, finitions soignées, SAV et garanties de résultats, tout ne se vaut pas !
Plan de maison neuve et procédé constructif conformes à la RE 2020.
Toutes nos maisons neuves sont contrôlées en fin de chantier par un organisme accrédité COFRAC qui délivre une attestation thermique et un DPE certifié.
Parce que vous n’avez pas tous les mêmes besoins, ni les mêmes goûts, tous les plans de nos maisons sont modifiables. Vous pouvez choisir de les construire tels quels ou de vous en inspirer librement. Nous construisons également des maisons sur mesure : venez avec vos idées ou vos plans !
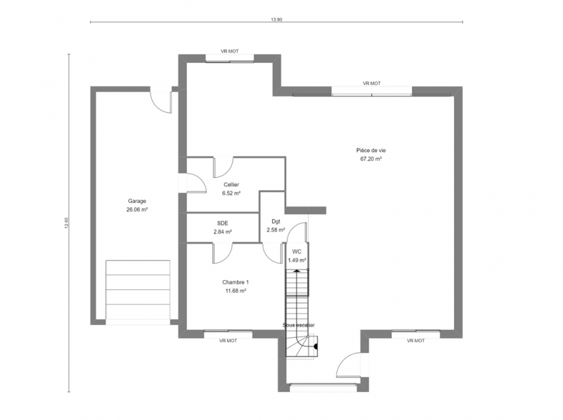
Plus de 124 m² habitables et un plan de maison optimisé. Aucune place n’est perdue, l’escalier est judicieusement pensé pour ne pas empiéter sur la grande pièce de vie. Les espaces nuits sont bien séparés pour le confort de tous les occupants. Une très belle suite parentale au rez-de-chaussée dans l’aile droite et 3 chambres à l’étage. Plancher béton, bien-sûr, pour l’étage comme pour le rez-de-chaussée. Côté architecture, la maison Calluna ne manque pas d’audace, les niveaux multiples de sa toiture se combinent harmonieusement avec la courbe de sa façade et le porche à toit plat qui prolonge le garage.
- Surface habitable : 124,68 m2
- Rez-de-chaussée : 82,44 m2
- Étage : 42,24 m2
- Combles aménagés
- Emprise au sol : 122,30 m2
- Maison avec étage
- Nombre de pièces : 5
- Chambres : 4
- Garage : 17,37 m2
- SdB / SdE : 2
- WC : 2
- Porche
- Architecture moderne
- Enduit 2 teintes au choix
- Box domotique Tahoma
Principes constructifs, équipes, éco-matériaux, finitions soignées, SAV et garanties de résultats, tout ne se vaut pas !
Plan de maison neuve et procédé constructif conformes à la RE 2020.
Toutes nos maisons neuves sont contrôlées en fin de chantier par un organisme accrédité COFRAC qui délivre une attestation thermique et un DPE certifié.
Parce que vous n’avez pas tous les mêmes besoins, ni les mêmes goûts, tous les plans de nos maisons sont modifiables. Vous pouvez choisir de les construire tels quels ou de vous en inspirer librement. Nous construisons également des maisons sur mesure : venez avec vos idées ou vos plans !
Les hautes façades de cette maison neuve, combinées à son toit 4 pentes, confèrent à ce modèle une allure moderne et assez inédite. Les plans de cette maison offrent de beaux espaces en phase avec les modes de vie actuels. La pièce à vivre, entièrement décloisonnée, occupe la quasi-totalité du rez-de-chaussée et propose un large accès au jardin. Impasse est faite sur la traditionnelle chambre du rez-de-chaussée : tout le monde n’a pas les mêmes modes vie et nous le prenons en compte. Cette maison dispose de 4 chambres à l’étage, qui peuvent se réinventer comme autant d’espaces de travail à la maison. Comme sur toutes nos maisons à étages : le plancher supérieur est lui-aussi en béton. Pas question de lésiner sur votre confort acoustique. À noter : un beau balcon accessible directement par les chambres côté jardin et la terrasse privative, au-dessus du garage, qui vient prolonger la suite parentale.
- Surface habitable : 131,26 m2
- Rez-de-chaussée : 60,71 m2
- Étage : 70,55 m2
- Combles perdus
- Emprise au sol : 97,45 m2
- Maison avec étage
- Nombre de pièces : 5
- Chambres : 4
- Garage : 20,11 m2
- SdB / SdE : 2
- WC : 3
- Toits 4 pentes
- Porche
- Architecture moderne
- Enduit 2 teintes au choix
- Box domotique Tahoma
Principes constructifs, équipes, éco-matériaux, finitions soignées, SAV et garanties de résultats, tout ne se vaut pas !
Plan de maison neuve et procédé constructif conformes à la RE 2020.
Toutes nos maisons neuves sont contrôlées en fin de chantier par un organisme accrédité COFRAC qui délivre une attestation thermique et un DPE certifié.
Parce que vous n’avez pas tous les mêmes besoins, ni les mêmes goûts, tous les plans de nos maisons sont modifiables. Vous pouvez choisir de les construire tels quels ou de vous en inspirer librement. Nous construisons également des maisons sur mesure : venez avec vos idées ou vos plans !
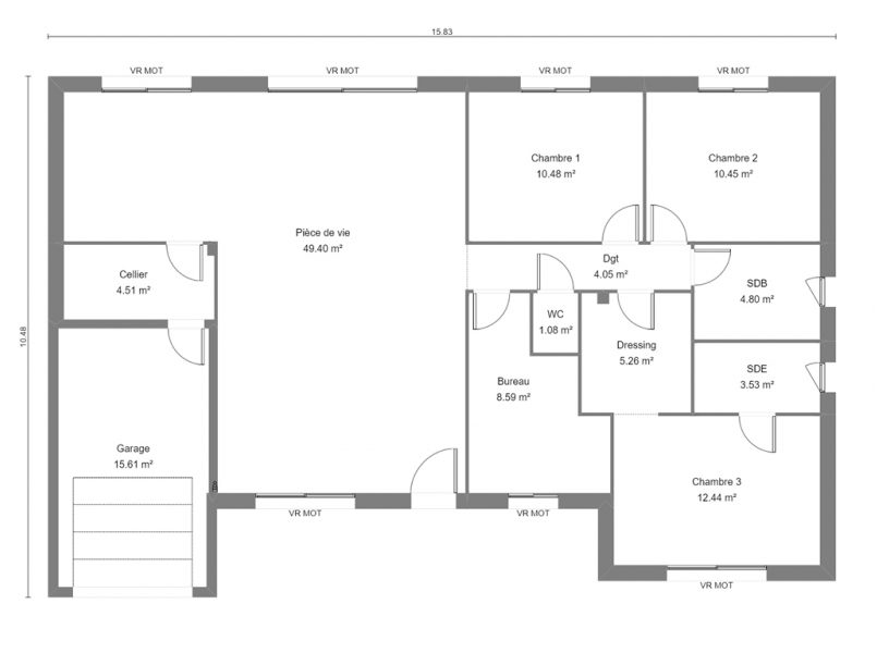
Une élégance simple se dégage de cette maison contemporaine à toit plat. Les décrochés de façade sont soulignés par l’alternance des couleurs de ses enduits extérieurs. C’est vous bien-sûr qui choisissez les teintes qui vous conviennent. La ligne minimaliste du porche de l’entrée contribue à l’esprit d’épure qui sous-tend la conception de cette maison individuelle de plain-pied. La pièce de vie, 49 m², dispose d’une large baie vitrée de 3 m de large. Un couloir dessert les espaces cloisonnés : deux chambres, une salle de bain commune, un bureau, ainsi qu’une superbe suite parentale de 21 m², incluant un grand dressing et une salle d’eau privative. Ce plan de maison comme tous ceux des Maisons Lelièvre sont ajustables à votre budget et à vos besoins : plus grand, plus petit, différent… Les conseillers Maisons Lelièvre vous accompagnent dans la personnalisation des plans de votre future maison.
L’AVEZ VOUS NOTÉ ?
Suite parentale de 21 m²
Bureau pour le télétravail
Un cellier accessible par la cuisine et le garage
- Surface habitable : 114,63 m2
- Rez-de-chaussée : 114,63 m2
- Combles perdus
- Emprise au sol : 154,85 m2
- Maison de plain-pied
- Nombre de pièces : 4
- Chambres : 3
- Garage : 15,61 m2
- SdB / SdE : 2
- WC : 1
- Toit plat
- Porche
- Architecture moderne
- Enduit 2 teintes au choix
- Box domotique Tahoma
Principes constructifs, équipes, éco-matériaux, finitions soignées, SAV et garanties de résultats, tout ne se vaut pas !
Plan de maison neuve et procédé constructif conformes à la RE 2020.
Toutes nos maisons neuves sont contrôlées en fin de chantier par un organisme accrédité COFRAC qui délivre une attestation thermique et un DPE certifié.
Parce que vous n’avez pas tous les mêmes besoins, ni les mêmes goûts, tous les plans de nos maisons sont modifiables. Vous pouvez choisir de les construire tels quels ou de vous en inspirer librement. Nous construisons également des maisons sur mesure : venez avec vos idées ou vos plans !
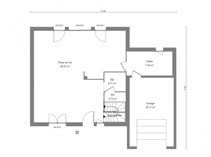
Le plan de cette maison de plain-pied témoigne tout à la fois d’une conception architecturale originale et d’un véritable sens pratique. Deux modules architecturaux, chacun couvert d’une toiture 4 pentes, font visuellement jonction dans un troisième espace à toit plat, le sas de l’entrée. Habillé par trois fenêtres aussi étroites qu’élancées, le sas de l’entrée s’invente une forte personnalité. L’aile gauche de la maison est réservée à la pièce de vie qui se prolonge sur une cuisine semi-ouverte, au total près de 49 m² pour vivre en commun ! Ces deux pièces s’enroulent autour d’un espace extérieur couvert d’environ 10 m², à investir comme un véritable jardin d’hiver abrité du vent ou une terrasse protégée des intempéries. L’aile droite de la maison, desservie par un couloir central, est dédiée aux 4 chambres, dont une grande suite parentale équipée d’un dressing et d’une salle d’eau, eux-mêmes clos par des portes à galandages pour éviter toute contrainte dans la disposition de votre mobilier.
L’AVEZ VOUS NOTÉ ?
Jardin d’hiver
Pièce de vie traversante de 49 m²
Suite parentale de 21 m²
Un cellier pour les rangements accessible par la cuisine et le garage
Garage intégré
- Surface habitable : 127,59 m2
- Rez-de-chaussée : 127,59 m2
- Combles perdus
- Emprise au sol : 178,50 m2
- Maison de plain-pied
- Nombre de pièces : 5
- Chambres : 4
- Garage : 13,99 m2
- SdB / SdE : 2
- WC : 1
- Toits 4 pentes
- Architecture moderne
- Enduit 2 teintes au choix
- Box domotique Tahoma
Principes constructifs, équipes, éco-matériaux, finitions soignées, SAV et garanties de résultats, tout ne se vaut pas !
Plan de maison neuve et procédé constructif conformes à la RE 2020.
Toutes nos maisons neuves sont contrôlées en fin de chantier par un organisme accrédité COFRAC qui délivre une attestation thermique et un DPE certifié.
Parce que vous n’avez pas tous les mêmes besoins, ni les mêmes goûts, tous les plans de nos maisons sont modifiables. Vous pouvez choisir de les construire tels quels ou de vous en inspirer librement. Nous construisons également des maisons sur mesure : venez avec vos idées ou vos plans !
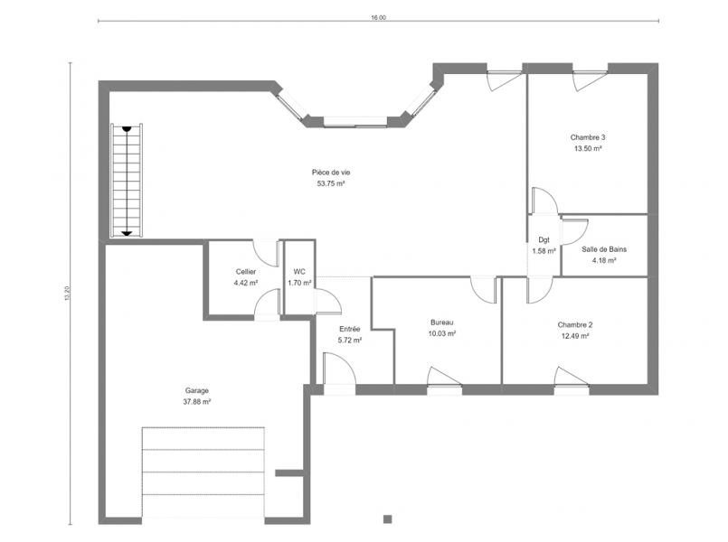
Une architecture séduisante et des lignes élégantes pour cette maison contemporaine qui combine toit plat et toiture arrondie. Côté intérieur, de l’espace et de la lumière à revendre ! Cette maison propose, dans un esprit loft, un plan atypique avec plafond à plus de 4 mètres de hauteur dans l’espace salon-séjour, le tout éclairé par 2 immenses baies vitrées qui se déploient sur les 2 niveaux. L’étage est entièrement dévolu à la suite parentale qui comprend un dressing de belle dimension et une salle-d’eau. Le garage est quant à lui suffisamment vaste pour s’y réserver un espace atelier, il se prolonge par un porche qui ajoute au charme de la maison.
- Surface habitable : 139,47 m2
- Rez-de-chaussée : 105,57 m2
- Étage : 33,90 m2
- Combles perdus
- Emprise au sol : 175,15 m2
- Maison avec étage
- Nombre de pièces : 5
- Chambres : 4
- Garage : 37,88 m2
- SdB / SdE : 2
- WC : 2
- Toit plat
- Porche
- Architecture moderne
- Enduit 2 teintes au choix
- Box domotique Tahoma
Principes constructifs, équipes, éco-matériaux, finitions soignées, SAV et garanties de résultats, tout ne se vaut pas !
Plan de maison neuve et procédé constructif conformes à la RE 2020.
Toutes nos maisons neuves sont contrôlées en fin de chantier par un organisme accrédité COFRAC qui délivre une attestation thermique et un DPE certifié.
Parce que vous n’avez pas tous les mêmes besoins, ni les mêmes goûts, tous les plans de nos maisons sont modifiables. Vous pouvez choisir de les construire tels quels ou de vous en inspirer librement. Nous construisons également des maisons sur mesure : venez avec vos idées ou vos plans !
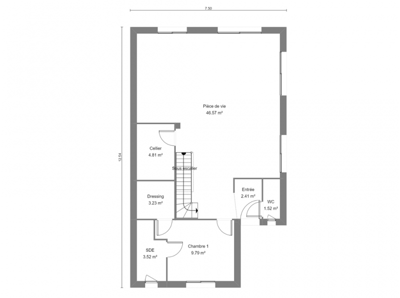
Pétunia ou la réinvention du pavillon traditionnel. Encadré par deux structures à toits plats, le pavillon classique prend une tout autre allure. Le plan de cette maison a été largement inspiré par des demandes fréquentes de nos clients qui cherchaient un juste milieu entre architecture contemporaine et architecture traditionnelle. Une grande pièce de vie, 3 chambres et un bureau prennent place sur un peu plus de 114 m² habitables. Bien agencé et d’un prix accessible, ce modèle de maison individuelle de plain-pied se prête facilement à vos demandes de modifications. Côté chauffage, parmi les 3 solutions que nous proposons, l’installation d’un poêle à pellet est tout à fait pertinente pour cette maison neuve très bien isolée.
L’AVEZ VOUS NOTÉ ?
Pièce de vie traversante de 49,4 m²
Suite parentale de 21 m²
Possibilité de bureau pour le télétravail
Un cellier pour les rangements accessible par la cuisine et le garage
- Surface habitable : 114,56 m2
- Rez-de-chaussée : 114,56 m2
- Combles perdus
- Emprise au sol : 152,88 m2
- Maison de plain-pied
- Nombre de pièces : 4
- Chambres : 3
- Garage : 15,61 m2
- SdB / SdE : 2
- WC : 1
- Toit plat
- Architecture moderne
- Enduit 2 teintes au choix
- Box domotique Tahoma
Principes constructifs, équipes, éco-matériaux, finitions soignées, SAV et garanties de résultats, tout ne se vaut pas !
Plan de maison neuve et procédé constructif conformes à la RE 2020.
Toutes nos maisons neuves sont contrôlées en fin de chantier par un organisme accrédité COFRAC qui délivre une attestation thermique et un DPE certifié.
Parce que vous n’avez pas tous les mêmes besoins, ni les mêmes goûts, tous les plans de nos maisons sont modifiables. Vous pouvez choisir de les construire tels quels ou de vous en inspirer librement. Nous construisons également des maisons sur mesure : venez avec vos idées ou vos plans !
Compacte et économique, cette maison neuve ne fait toutefois aucune concession quand la qualité de son aménagement, de ses finitions et de sa construction. 87 m² habitables, 3 chambres, une belle pièce de vie et de nombreux espaces étudiés pour y aménager des placards. Le garage et le cellier sont bien-sûr inclus dans le prix initial, de même que toutes les prestations soignées des Maisons Lelièvre.
- Surface habitable : 86,93 m2
- Rez-de-chaussée : 86,93 m2
- Combles perdus
- Emprise au sol : 123,01 m2
- Maison de plain-pied
- Nombre de pièces : 4
- Chambres : 3
- Garage : 17,61 m2
- SdB / SdE : 1
- WC : 1
- Toits 2 pentes
- Architecture moderne
- Enduit 2 teintes au choix
- Box domotique Tahoma
Principes constructifs, équipes, éco-matériaux, finitions soignées, SAV et garanties de résultats, tout ne se vaut pas !
Plan de maison neuve et procédé constructif conformes à la RE 2020.
Toutes nos maisons neuves sont contrôlées en fin de chantier par un organisme accrédité COFRAC qui délivre une attestation thermique et un DPE certifié.
Parce que vous n’avez pas tous les mêmes besoins, ni les mêmes goûts, tous les plans de nos maisons sont modifiables. Vous pouvez choisir de les construire tels quels ou de vous en inspirer librement. Nous construisons également des maisons sur mesure : venez avec vos idées ou vos plans !
Résolument contemporaine dans son architecture, cette maison neuve est aussi en avance sur son temps puisque que nous la construisons en niveau énergie positive. Plus performante qu’une maison passive, une maison à énergie positive consomme moins d’énergie qu’elle n’en produit. Conçu sur 2 niveaux, ce plan de maison propose 127 m² habitables, un beau salon-cuisine lumineux et 4 chambres. La chambre du rez-de-chaussée comprend aussi un dressing et une salle d’eau privative. Grâce à sa faible emprise au sol, seulement 87,53 m², cette maison peut s’implanter facilement sur un petit terrain en ville et en région parisienne tout en préservant l’espace du jardin.
- Surface habitable : 127,98 m2
- Rez-de-chaussée : 71,94 m2
- Étage : 56,04 m2
- Combles perdus
- Emprise au sol : 87,53 m2
- Maison avec étage
- Nombre de pièces : 5
- Chambres : 4
- SdB / SdE : 2
- WC : 2
- Toit plat
- Architecture moderne
- Enduit 2 teintes au choix
- Box domotique Tahoma
Principes constructifs, équipes, éco-matériaux, finitions soignées, SAV et garanties de résultats, tout ne se vaut pas !
Plan de maison neuve et procédé constructif conformes à la RE 2020.
Toutes nos maisons neuves sont contrôlées en fin de chantier par un organisme accrédité COFRAC qui délivre une attestation thermique et un DPE certifié.
Parce que vous n’avez pas tous les mêmes besoins, ni les mêmes goûts, tous les plans de nos maisons sont modifiables. Vous pouvez choisir de les construire tels quels ou de vous en inspirer librement. Nous construisons également des maisons sur mesure : venez avec vos idées ou vos plans !
Ce modèle de maison très contemporaine à toit multi-pentes, au-delà de son niveau énergie positive, propose des prestations haut de gamme : 134 m² habitables dont 4 chambres, celle du rez-du-chaussée comprend une salle d’eau privative équipée d’une douche, les plans incluent déjà les zones de cloisonnement pour vos placards intégrés. À l’étage, l’une des chambres est constituée en suite parentale de plus de 20 m² et un bel espace mezzanine permet d’envisager un bureau d’appoint, un coin bibliothèque ou un espace multimédia. À noter : les allèges vitrées sous les fenêtres de l’étage qui assurent fonction de garde-corps sans rien retirer à la vue sur l’extérieur. Les couleurs de l’enduit béton sont, bien-entendu, laissées à votre libre choix et le marquage au fer de l’enduit viendra souligner la modernité de cette maison.
- Surface habitable : 134,08 m2
- Rez-de-chaussée : 65,41 m2
- Étage : 68,67 m2
- Combles perdus
- Emprise au sol : 103,35 m2
- Maison avec étage
- Nombre de pièces : 6
- Chambres : 4
- Garage : 14,28 m2
- SdB / SdE : 3
- WC : 2
- Toits 3 et 4 pentes
- Porche
- Architecture moderne
- Enduit 2 teintes au choix
- Box domotique Tahoma
Principes constructifs, équipes, éco-matériaux, finitions soignées, SAV et garanties de résultats, tout ne se vaut pas !
Plan de maison neuve et procédé constructif conformes à la RE 2020.
Toutes nos maisons neuves sont contrôlées en fin de chantier par un organisme accrédité COFRAC qui délivre une attestation thermique et un DPE certifié.
Parce que vous n’avez pas tous les mêmes besoins, ni les mêmes goûts, tous les plans de nos maisons sont modifiables. Vous pouvez choisir de les construire tels quels ou de vous en inspirer librement. Nous construisons également des maisons sur mesure : venez avec vos idées ou vos plans !
Cette maison de plain-pied à toit plat, aussi accessible que contemporaine, comprend 3 chambres, une belle pièce de vie ouverte sur le jardin et un garage. Pour optimiser l’espace, les plans de cloisonnement ont déjà été étudiés pour que vous puissiez aménager de grands placards intégrés. Adapté aux situations mitoyennes rencontrées dans certains lotissements, ce modèle offre 84 m² habitables. Idéale pour une première acquisition ou un investissement locatif, cette maison bien conçue sera aisément valorisable en cas de revente. Son niveau énergie positive, la qualité de son bâti et de ses prestations en font un investissement constructif tant pour le présent que pour l’avenir.
- Surface habitable : 84,54 m2
- Rez-de-chaussée : 84,54 m2
- Combles perdus
- Emprise au sol : 118,15 m2
- Maison de plain-pied
- Nombre de pièces : 4
- Chambres : 3
- Garage : 15,77 m2
- SdB / SdE : 1
- WC : 1
- Toit plat
- Porche
- Architecture moderne
- Enduit 2 teintes au choix
- Box domotique Tahoma
Principes constructifs, équipes, éco-matériaux, finitions soignées, SAV et garanties de résultats, tout ne se vaut pas !
Plan de maison neuve et procédé constructif conformes à la RE 2020.
Toutes nos maisons neuves sont contrôlées en fin de chantier par un organisme accrédité COFRAC qui délivre une attestation thermique et un DPE certifié.
Parce que vous n’avez pas tous les mêmes besoins, ni les mêmes goûts, tous les plans de nos maisons sont modifiables. Vous pouvez choisir de les construire tels quels ou de vous en inspirer librement. Nous construisons également des maisons sur mesure : venez avec vos idées ou vos plans !
Plans de maisons individuelles 100% conformes RE 2020
La meilleure énergie, c’est celle qu’on ne consomme pas.
Plus exigeante que la RT2012, La Réglementation Environnementale 2020 limite l’impact environnemental global des constructions tout en préservant le confort des habitants. Tous nos plans et procédés constructifs sont conformes à la RE 2020.
Très bien isolée et bien exposée, une maison RE 2020 consomme peu d’énergie et garantit un niveau de confort en cas de forte chaleur. Ses besoins en énergie sont couverts par des sources non fossile. L’impact carbone des matériaux de construction entre désormais dans le calcul.