Maison 4 pièces - 3 chambres - 83,19 m2 habitables

Tilia

Les plans de la maison Tilia ont été imaginés pour rendre leur prix accessible au moment de la construction tout en offrant de réelles possibilités d’évolution à plus ou moins brève échéance, et ce, grâce à une surface importante de combles aménageables à l’étage. À partir de 83 m² habitables, ce plan de maison neuve se décline en version 3 chambres ou 4 chambres auxquels s’ajoute un garage accolé. Petite ou grande surface, vous bénéficiez des prestations de qualité et des finitions soignées qui font la réputation des Maisons Lelièvre : volets électriques intégrés au bâti, porte de garage motorisée et isolée, radiateur sèche serviette dans la salle de bain, plancher béton à l’étage comme du rez-de-chaussée, écran sous toiture, garage et chambres livrés en chape lisse.

Principales caractéristiques de cette maison neuve
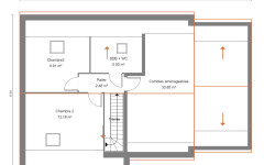
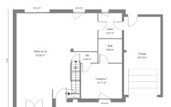
  • Surface habitable : 83,19 m2
  • Rez-de-chaussée : 65,11 m2
  • Étage : 18,08 m2
  • Combles aménagés
  • Emprise au sol : 101,64 m2
  • Maison avec étage
  • Nombre de pièces : 4
  • Chambres : 3
  • Garage : 20,19 m2
  • SdB / SdE : 2
  • WC : 2
  • Toits 2 pentes
  • Porche
  • Architecture classique
  • Enduit 2 teintes au choix
  • Box domotique Tahoma
10 bonnes raisons de construire avec nous

Principes constructifs, équipes, éco-matériaux, finitions soignées, SAV et garanties de résultats, tout ne se vaut pas !

Plan de maison neuve et procédé constructif conformes à la RE 2020.

Toutes nos maisons neuves sont contrôlées en fin de chantier par un organisme accrédité COFRAC qui délivre une attestation thermique et un DPE certifié.

Plans personnalisables et maisons sur mesure

Parce que vous n’avez pas tous les mêmes besoins, ni les mêmes goûts, tous les plans de nos maisons sont modifiables. Vous pouvez choisir de les construire tels quels ou de vous en inspirer librement. Nous construisons également des maisons sur mesure : venez avec vos idées ou vos plans !

Ce site utilise des cookies et vous donne le contrôle sur ce que vous souhaitez activer Tout accepter Personnaliser