Maison 5 pièces - 4 chambres - 138,01 m2 habitables

Stellaria

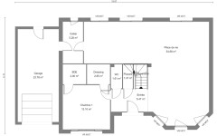
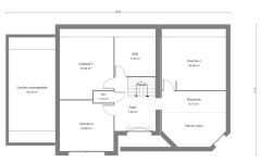
L’extérieur de cette maison joue les imbrications de volumes avec une certaine audace. Son architecture dynamique peut être soulignée par un revêtement en pierres de parements dans l’entrée. La pièce de vie, près de 55 m² en forme de L, s’achève avec élégance sur un bow-window, l’espace sous plafond qui le surplombe s’ouvre jusqu’au toit de la maison. Les 4 chambres sont vastes et deux d’entre elles bénéficient d’un bel éclairage naturel puisqu’elles sont équipées de grandes baies vitrées. Le pallier de l’étage peut être aménagé en bureau. Le garage accolé, livré en chape lisse bien-sûr, inclut 18 m² combles aménageables à l’étage.

L’AVEZ VOUS NOTÉ ?

Combles aménageables de 18 m²

Palier à l’étage de près de 8 m² pouvant devenir un bureau

Stellaria se décline de 138 à 171 m² avec 4 ou 5 chambres

Principales caractéristiques de cette maison neuve
  • Surface habitable : 138,01 m2
  • Rez-de-chaussée : 87,11 m2
  • Étage : 50,90 m2
  • Combles aménagés
  • Emprise au sol : 135,27 m2
  • Maison avec étage
  • Nombre de pièces : 5
  • Chambres : 4
  • Garage : 23,78 m2
  • SdB / SdE : 2
  • WC : 2
  • Toits 2 pentes
  • Porche
  • Architecture classique
  • Enduit 2 teintes au choix
  • Box domotique Tahoma
10 bonnes raisons de construire avec nous

Principes constructifs, équipes, éco-matériaux, finitions soignées, SAV et garanties de résultats, tout ne se vaut pas !

Plan de maison neuve et procédé constructif conformes à la RE 2020.

Toutes nos maisons neuves sont contrôlées en fin de chantier par un organisme accrédité COFRAC qui délivre une attestation thermique et un DPE certifié.

Plans personnalisables et maisons sur mesure

Parce que vous n’avez pas tous les mêmes besoins, ni les mêmes goûts, tous les plans de nos maisons sont modifiables. Vous pouvez choisir de les construire tels quels ou de vous en inspirer librement. Nous construisons également des maisons sur mesure : venez avec vos idées ou vos plans !

Ce site utilise des cookies et vous donne le contrôle sur ce que vous souhaitez activer Tout accepter Personnaliser