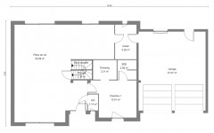
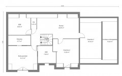
Maison 6 pièces - 4 chambres - 136,68 m2 habitables

Salvia

Cette maison à l’allure classique soigne sa façade : rythme de la toiture, fenêtre en lucarne, œil de bœuf ou fenêtre en demi-lune, sans oublier sa large baie vitrée. Les plans intérieurs de cette maison à étage incluent de base deux suites parentales, dont l’une de plus de 25 m², ainsi qu’un grand bureau auquel s’ajoute 2 chambres de belles dimensions, le tout sans rien enlever à l’espace de vie qui se déploie sur 52 m² au rez-de-chaussée. Ce modèle, qui fait partie de nos grands classiques, se prête bien à vos demandes de personnalisation, n’hésitez pas à interroger les conseillers Maisons Lelièvre. La maison exposition de Nogent-le-Phaye (Eure-etLoire) est une variante du plan de maison SALVIA, rendez-nous visite et faites le tour du propriétaire.

Principales caractéristiques de cette maison neuve
  • Surface habitable : 136,68 m2
  • Rez-de-chaussée : 77,32 m2
  • Étage : 59,36 m2
  • Combles aménagés
  • Emprise au sol : 135,10 m2
  • Maison avec étage
  • Nombre de pièces : 6
  • Chambres : 4
  • Garage : 37,57 m2
  • SdB / SdE : 3
  • WC : 2
  • Toits 2 pentes
  • Architecture classique
  • Enduit 2 teintes au choix
  • Box domotique Tahoma
10 bonnes raisons de construire avec nous

Principes constructifs, équipes, éco-matériaux, finitions soignées, SAV et garanties de résultats, tout ne se vaut pas !

Plan de maison neuve et procédé constructif conformes à la RE 2020.

Toutes nos maisons neuves sont contrôlées en fin de chantier par un organisme accrédité COFRAC qui délivre une attestation thermique et un DPE certifié.

Plans personnalisables et maisons sur mesure

Parce que vous n’avez pas tous les mêmes besoins, ni les mêmes goûts, tous les plans de nos maisons sont modifiables. Vous pouvez choisir de les construire tels quels ou de vous en inspirer librement. Nous construisons également des maisons sur mesure : venez avec vos idées ou vos plans !

Ce site utilise des cookies et vous donne le contrôle sur ce que vous souhaitez activer Tout accepter Personnaliser