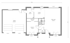
Maison 7 pièces - 5 chambres - 131,63 m2 habitables

Daphne

Conçue pour une famille nombreuse ou pour les amateurs de grands espaces, le modèle de maison neuve Daphné optimise l’espace pour le bien-être de ses occupants. Avec quatre chambres à l’étage d’une surface moyenne de 11,5 m² donnant sur une mezzanine de près de 14 m², ce niveau supérieur est un mélange subtil entre intimité et partage. Les enfants pourront se réunir dans cet espace multimédia pour partager leur temps et souder leurs liens. Au rez-de-chaussée la chambre dispose d’une salle d’eau privative. La cuisine, qui peut être cloisonnée si souhaité, s’ouvre sur un salon traversant qu’illumine une large baie vitrée de 2,80m d’envergure.

L’AVEZ VOUS NOTÉ ?

Adaptable pour profession libérale

Double garage de 41 m² avec entrée indépendante

Un cellier spacieux accessible par le garage et la cuisine

Principales caractéristiques de cette maison neuve
  • Surface habitable : 131,63 m2
  • Rez-de-chaussée : 65,16 m2
  • Étage : 66,53 m2
  • Combles perdus
  • Emprise au sol : 127,38 m2
  • Maison avec étage
  • Nombre de pièces : 7
  • Chambres : 5
  • Garage : 40,98 m2
  • SdB / SdE : 2
  • WC : 2
  • Porche
  • Architecture classique
  • Enduit 2 teintes au choix
  • Box domotique Tahoma
10 bonnes raisons de construire avec nous

Principes constructifs, équipes, éco-matériaux, finitions soignées, SAV et garanties de résultats, tout ne se vaut pas !

Plan de maison neuve et procédé constructif conformes à la RE 2020.

Toutes nos maisons neuves sont contrôlées en fin de chantier par un organisme accrédité COFRAC qui délivre une attestation thermique et un DPE certifié.

Plans personnalisables et maisons sur mesure

Parce que vous n’avez pas tous les mêmes besoins, ni les mêmes goûts, tous les plans de nos maisons sont modifiables. Vous pouvez choisir de les construire tels quels ou de vous en inspirer librement. Nous construisons également des maisons sur mesure : venez avec vos idées ou vos plans !

Ce site utilise des cookies et vous donne le contrôle sur ce que vous souhaitez activer Tout accepter Personnaliser