Maison 6 pièces - 5 chambres - 164,69 m2 habitables

Asarina

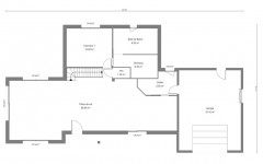
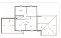
Conçue sur un principe d’imbrication de 3 modules architecturaux, cette maison neuve affirme son originalité autant que toute attention que nous portons au confort de vie de ses habitants. Modernes et spacieux, les plans de cette maison individuelle s’articulent autour d’un module central, dont l’étage, à plancher béton, abrite quatre chambres. La pièce de vie totalise près de 67 m², ce bel espace rectangulaire se prête à tous les aménagements et la lumière naturelle y est omniprésente grâce à deux grandes baies coulissantes ouvertes de part et d’autre du jardin. Judicieusement isolée des espaces communs, la suite parentale située en rez-de-chaussée dispose d’un accès privatif au jardin, via une belle baie vitrée coulissante. Le grand garage de cette maison, livré en chape lisse et équipé d’une fenêtre, permet d’envisager facilement l’installation d’un atelier. Vous pouvez bien-sûr personnaliser librement ce plan pour l’ajuster à vos modes de vies.

L’AVEZ VOUS NOTÉ ?

Suite parentale en rez-de-jardin totalisant près de 28 m²

Garage accolé de 37 m² avec accès direct au jardin et au cellier

Un cellier spacieux accessible par la cuisine et le jardin

Principales caractéristiques de cette maison neuve
  • Surface habitable : 164,69 m2
  • Rez-de-chaussée : 101,59 m2
  • Étage : 63,10 m2
  • Combles aménagés
  • Emprise au sol : 162,20 m2
  • Maison avec étage
  • Nombre de pièces : 6
  • Chambres : 5
  • Garage : 37,16 m2
  • SdB / SdE : 2
  • WC : 2
  • Toits 3 et 4 pentes
  • Porche
  • Architecture classique
  • Enduit 2 teintes au choix
  • Box domotique Tahoma
10 bonnes raisons de construire avec nous

Principes constructifs, équipes, éco-matériaux, finitions soignées, SAV et garanties de résultats, tout ne se vaut pas !

Plan de maison neuve et procédé constructif conformes à la RE 2020.

Toutes nos maisons neuves sont contrôlées en fin de chantier par un organisme accrédité COFRAC qui délivre une attestation thermique et un DPE certifié.

Plans personnalisables et maisons sur mesure

Parce que vous n’avez pas tous les mêmes besoins, ni les mêmes goûts, tous les plans de nos maisons sont modifiables. Vous pouvez choisir de les construire tels quels ou de vous en inspirer librement. Nous construisons également des maisons sur mesure : venez avec vos idées ou vos plans !

Ce site utilise des cookies et vous donne le contrôle sur ce que vous souhaitez activer Tout accepter Personnaliser