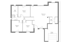
Maison 4 pièces - 3 chambres - 86,93 m2 habitables

Zea

Compacte et économique, cette maison neuve ne fait toutefois aucune concession quand la qualité de son aménagement, de ses finitions et de sa construction. 87 m² habitables, 3 chambres, une belle pièce de vie et de nombreux espaces étudiés pour y aménager des placards. Le garage et le cellier sont bien-sûr inclus dans le prix initial, de même que toutes les prestations soignées des Maisons Lelièvre.

Principales caractéristiques de cette maison neuve
  • Surface habitable : 86,93 m2
  • Rez-de-chaussée : 86,93 m2
  • Combles perdus
  • Emprise au sol : 123,01 m2
  • Maison de plain-pied
  • Nombre de pièces : 4
  • Chambres : 3
  • Garage : 17,61 m2
  • SdB / SdE : 1
  • WC : 1
  • Toits 2 pentes
  • Architecture moderne
  • Enduit 2 teintes au choix
  • Box domotique Tahoma
10 bonnes raisons de construire avec nous

Principes constructifs, équipes, éco-matériaux, finitions soignées, SAV et garanties de résultats, tout ne se vaut pas !

Plan de maison neuve et procédé constructif conformes à la RE 2020.

Toutes nos maisons neuves sont contrôlées en fin de chantier par un organisme accrédité COFRAC qui délivre une attestation thermique et un DPE certifié.

Plans personnalisables et maisons sur mesure

Parce que vous n’avez pas tous les mêmes besoins, ni les mêmes goûts, tous les plans de nos maisons sont modifiables. Vous pouvez choisir de les construire tels quels ou de vous en inspirer librement. Nous construisons également des maisons sur mesure : venez avec vos idées ou vos plans !

Ce site utilise des cookies et vous donne le contrôle sur ce que vous souhaitez activer Tout accepter Personnaliser