Une architecture séduisante et des lignes élégantes pour cette maison contemporaine qui combine toit plat et toiture arrondie. Côté intérieur, de l’espace et de la lumière à revendre ! Cette maison propose, dans un esprit loft, un plan atypique avec plafond à plus de 4 mètres de hauteur dans l’espace salon-séjour, le tout éclairé par 2 immenses baies vitrées qui se déploient sur les 2 niveaux. L’étage est entièrement dévolu à la suite parentale qui comprend un dressing de belle dimension et une salle-d’eau. Le garage est quant à lui suffisamment vaste pour s’y réserver un espace atelier, il se prolonge par un porche qui ajoute au charme de la maison.
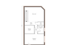
Maison 5 pièces - 4 chambres - 139,47 m2 habitables
Principales caractéristiques de cette maison neuve
- Surface habitable : 139,47 m2
- Rez-de-chaussée : 105,57 m2
- Étage : 33,90 m2
- Combles perdus
- Emprise au sol : 175,15 m2
- Maison avec étage
- Nombre de pièces : 5
- Chambres : 4
- Garage : 37,88 m2
- SdB / SdE : 2
- WC : 2
- Toit plat
- Porche
- Architecture moderne
- Enduit 2 teintes au choix
- Box domotique Tahoma
10 bonnes raisons de construire avec nous
Principes constructifs, équipes, éco-matériaux, finitions soignées, SAV et garanties de résultats, tout ne se vaut pas !

Plan de maison neuve et procédé constructif conformes à la RE 2020.
Toutes nos maisons neuves sont contrôlées en fin de chantier par un organisme accrédité COFRAC qui délivre une attestation thermique et un DPE certifié.

Plans personnalisables et maisons sur mesure
Parce que vous n’avez pas tous les mêmes besoins, ni les mêmes goûts, tous les plans de nos maisons sont modifiables. Vous pouvez choisir de les construire tels quels ou de vous en inspirer librement. Nous construisons également des maisons sur mesure : venez avec vos idées ou vos plans !