Maison 5 pièces - 4 chambres - 131,26 m2 habitables

Fuschia

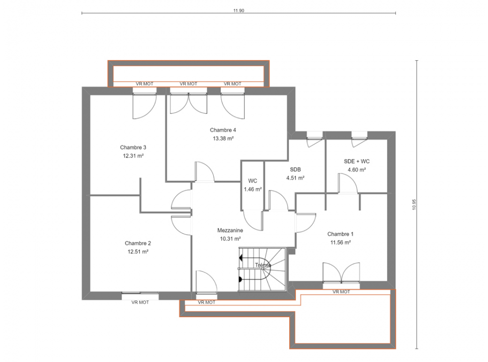
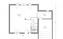
Les hautes façades de cette maison neuve, combinées à son toit 4 pentes, confèrent à ce modèle une allure moderne et assez inédite. Les plans de cette maison offrent de beaux espaces en phase avec les modes de vie actuels. La pièce à vivre, entièrement décloisonnée, occupe la quasi-totalité du rez-de-chaussée et propose un large accès au jardin. Impasse est faite sur la traditionnelle chambre du rez-de-chaussée : tout le monde n’a pas les mêmes modes vie et nous le prenons en compte. Cette maison dispose de 4 chambres à l’étage, qui peuvent se réinventer comme autant d’espaces de travail à la maison. Comme sur toutes nos maisons à étages : le plancher supérieur est lui-aussi en béton. Pas question de lésiner sur votre confort acoustique. À noter : un beau balcon accessible directement par les chambres côté jardin et la terrasse privative, au-dessus du garage, qui vient prolonger la suite parentale.

Principales caractéristiques de cette maison neuve
  • Surface habitable : 131,26 m2
  • Rez-de-chaussée : 60,71 m2
  • Étage : 70,55 m2
  • Combles perdus
  • Emprise au sol : 97,45 m2
  • Maison avec étage
  • Nombre de pièces : 5
  • Chambres : 4
  • Garage : 20,11 m2
  • SdB / SdE : 2
  • WC : 3
  • Toits 4 pentes
  • Porche
  • Architecture moderne
  • Enduit 2 teintes au choix
  • Box domotique Tahoma
10 bonnes raisons de construire avec nous

Principes constructifs, équipes, éco-matériaux, finitions soignées, SAV et garanties de résultats, tout ne se vaut pas !

Plan de maison neuve et procédé constructif conformes à la RE 2020.

Toutes nos maisons neuves sont contrôlées en fin de chantier par un organisme accrédité COFRAC qui délivre une attestation thermique et un DPE certifié.

Plans personnalisables et maisons sur mesure

Parce que vous n’avez pas tous les mêmes besoins, ni les mêmes goûts, tous les plans de nos maisons sont modifiables. Vous pouvez choisir de les construire tels quels ou de vous en inspirer librement. Nous construisons également des maisons sur mesure : venez avec vos idées ou vos plans !

Ce site utilise des cookies et vous donne le contrôle sur ce que vous souhaitez activer Tout accepter Personnaliser