Maison 7 pièces - 5 chambres - 126,48 m2 habitables

Tulipa

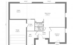
Compact et adapté à un tissu urbain dense, ce modèle de maison neuve présente une façade originale dans laquelle s’imbriquent deux pignons qui jouent l’avancé et le retrait. À L’étage, l’une des chambres est équipée d’une fenêtre en verrière d’angle qui apporte un cachet particulier à la façade et offre une vue dégagée sur l’extérieur. Cette maison de type traditionnelle est disponible en plusieurs configurations, la version 3 chambres laisse encore 33 m² de combles aménageables, accessibles et déjà équipées de fenêtres, pour faire évoluer facilement votre maison en temps voulu. Vous pouvez également choisir d’emblée d’aménager tout ou partie des combles. Zéro mètre carré perdu : les plans de cette maison ont été étudiés avec le plus grand soin pour que vous puissiez habiter chaque mètre carré, ainsi le cellier est équipé d’une porte coulissante escamotable dans la cloison et les WC du rez-de-chaussée sont installés sous l’escalier.

L’AVEZ VOUS NOTÉ ?

Combles aménageables de 33 m² accessible avec deux lucarnes

Tulipa se décline de 95 à 126 m² avec 3, 4 ou 5 chambres

Principales caractéristiques de cette maison neuve
  • Surface habitable : 126,48 m2
  • Rez-de-chaussée : 64,85 m2
  • Étage : 61,63 m2
  • Combles aménagés
  • Emprise au sol : 99,19 m2
  • Maison avec étage
  • Nombre de pièces : 7
  • Chambres : 5
  • Garage : 17,50 m2
  • SdB / SdE : 2
  • WC : 2
  • Toits 2 pentes
  • Architecture classique
  • Enduit 2 teintes au choix
  • Box domotique Tahoma
10 bonnes raisons de construire avec nous

Principes constructifs, équipes, éco-matériaux, finitions soignées, SAV et garanties de résultats, tout ne se vaut pas !

Plan de maison neuve et procédé constructif conformes à la RE 2020.

Toutes nos maisons neuves sont contrôlées en fin de chantier par un organisme accrédité COFRAC qui délivre une attestation thermique et un DPE certifié.

Plans personnalisables et maisons sur mesure

Parce que vous n’avez pas tous les mêmes besoins, ni les mêmes goûts, tous les plans de nos maisons sont modifiables. Vous pouvez choisir de les construire tels quels ou de vous en inspirer librement. Nous construisons également des maisons sur mesure : venez avec vos idées ou vos plans !

Ce site utilise des cookies et vous donne le contrôle sur ce que vous souhaitez activer Tout accepter Personnaliser