Cette maison de plain-pied à toit plat, aussi accessible que contemporaine, comprend 3 chambres, une belle pièce de vie ouverte sur le jardin et un garage. Pour optimiser l’espace, les plans de cloisonnement ont déjà été étudiés pour que vous puissiez aménager de grands placards intégrés. Adapté aux situations mitoyennes rencontrées dans certains lotissements, ce modèle offre 84 m² habitables. Idéale pour une première acquisition ou un investissement locatif, cette maison bien conçue sera aisément valorisable en cas de revente. Son niveau énergie positive, la qualité de son bâti et de ses prestations en font un investissement constructif tant pour le présent que pour l’avenir.
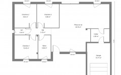
Maison 4 pièces - 3 chambres - 84,54 m2 habitables
Principales caractéristiques de cette maison neuve
- Surface habitable : 84,54 m2
- Rez-de-chaussée : 84,54 m2
- Combles perdus
- Emprise au sol : 118,15 m2
- Maison de plain-pied
- Nombre de pièces : 4
- Chambres : 3
- Garage : 15,77 m2
- SdB / SdE : 1
- WC : 1
- Toit plat
- Porche
- Architecture moderne
- Enduit 2 teintes au choix
- Box domotique Tahoma
10 bonnes raisons de construire avec nous
Principes constructifs, équipes, éco-matériaux, finitions soignées, SAV et garanties de résultats, tout ne se vaut pas !

Plan de maison neuve et procédé constructif conformes à la RE 2020.
Toutes nos maisons neuves sont contrôlées en fin de chantier par un organisme accrédité COFRAC qui délivre une attestation thermique et un DPE certifié.

Plans personnalisables et maisons sur mesure
Parce que vous n’avez pas tous les mêmes besoins, ni les mêmes goûts, tous les plans de nos maisons sont modifiables. Vous pouvez choisir de les construire tels quels ou de vous en inspirer librement. Nous construisons également des maisons sur mesure : venez avec vos idées ou vos plans !