Maison 5 pièces - 4 chambres - 126,66 m2 habitables

Veronica

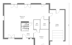
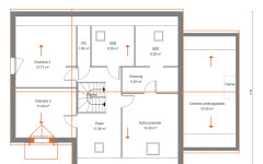
Caractérisé par son porche très dessiné, en retrait de la façade principale, et un balcon qui participe avec justesse à l’équilibre de l’architecture, ce plan de maison fait la part belle à la pièce de vie en rez-de-chaussée. L’escalier qui mène aux combles aménagés, et abrite dans le même temps les WC, est orienté de manière à éviter toute contrainte dans l’installation votre mobilier. Dans sa version 4 chambres, la maison Veronica dispose d’une très belle chambre constituée en suite à l’étage : près de 25 m² incluant dressing et salle de bain privative, de quoi imaginer un espace quasi indépendant pour des enfants qui poursuivent leurs études au domicile familial. La chambre du rez-de-chaussée, qui dispose également de sa propre salle-de-bain, est aisément convertissable en bureau. Plus de 15 m² de combles aménageables surplombent le garage et vous permettent d’agrandir, à plus ou moins brève échéance, vos espaces de vie.

L’AVEZ VOUS NOTÉ ?

Combles aménageables de 15,4 m²

Palier à l’étage de près de 11 m² pouvant devenir un espace multimédia

Deux suites parentales

Balcon

Principales caractéristiques de cette maison neuve
  • Surface habitable : 126,66 m2
  • Rez-de-chaussée : 75,20 m2
  • Étage : 51,46 m2
  • Combles aménagés
  • Emprise au sol : 121,50 m2
  • Maison avec étage
  • Nombre de pièces : 5
  • Chambres : 4
  • Garage : 22,65 m2
  • SdB / SdE : 3
  • WC : 2
  • Toits 2 pentes
  • Porche
  • Architecture classique
  • Enduit 2 teintes au choix
  • Box domotique Tahoma
10 bonnes raisons de construire avec nous

Principes constructifs, équipes, éco-matériaux, finitions soignées, SAV et garanties de résultats, tout ne se vaut pas !

Plan de maison neuve et procédé constructif conformes à la RE 2020.

Toutes nos maisons neuves sont contrôlées en fin de chantier par un organisme accrédité COFRAC qui délivre une attestation thermique et un DPE certifié.

Plans personnalisables et maisons sur mesure

Parce que vous n’avez pas tous les mêmes besoins, ni les mêmes goûts, tous les plans de nos maisons sont modifiables. Vous pouvez choisir de les construire tels quels ou de vous en inspirer librement. Nous construisons également des maisons sur mesure : venez avec vos idées ou vos plans !

Ce site utilise des cookies et vous donne le contrôle sur ce que vous souhaitez activer Tout accepter Personnaliser