Maison 9 pièces - 7 chambres - 139,18 m2 habitables

Iberis

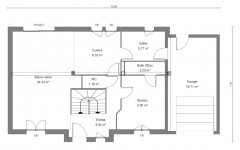
Idéale pour les petits terrains en ville, en région parisienne et pour les situations de construction accolée, la maison Iberis se déploie sur trois niveaux habitables et compte sept chambres dont une suite parentale en rez-de-chaussée. 139 m² habitables pour une emprise au sol, incluant le garage, d’un peu plus de 93 m². Le moindre espace est optimisé et, sous les toits, deux chambres spacieuses sont accessibles par un large palier. Cette maison offre de multiples possibilités d’aménagement qu’il s’agisse d’héberger une grande famille, de répondre à des besoins d’espaces de télétravail ou à un investissement locatif pour colocation. Comme sur toutes nos maisons à étage, les planchers bétons entre chaque niveau garantissent un excellent confort acoustique.

L’AVEZ VOUS NOTÉ ?

Style traditionnel hérité des longères qui respecte les normes des bâtiments de France

Garage accolé avec entrée indépendante

Un cellier spacieux accessible par le garage et la cuisine

Principales caractéristiques de cette maison neuve
  • Surface habitable : 139,18 m2
  • Rez-de-chaussée : 60,82 m2
  • Étage : 56,82 m2
  • Combles aménagés
  • Emprise au sol : 93,84 m2
  • Maison avec étage
  • Nombre de pièces : 9
  • Chambres : 7
  • Garage : 18,71 m2
  • SdB / SdE : 2
  • WC : 2
  • Toits 2 pentes
  • Architecture classique
  • Enduit 2 teintes au choix
  • Box domotique Tahoma
10 bonnes raisons de construire avec nous

Principes constructifs, équipes, éco-matériaux, finitions soignées, SAV et garanties de résultats, tout ne se vaut pas !

Plan de maison neuve et procédé constructif conformes à la RE 2020.

Toutes nos maisons neuves sont contrôlées en fin de chantier par un organisme accrédité COFRAC qui délivre une attestation thermique et un DPE certifié.

Plans personnalisables et maisons sur mesure

Parce que vous n’avez pas tous les mêmes besoins, ni les mêmes goûts, tous les plans de nos maisons sont modifiables. Vous pouvez choisir de les construire tels quels ou de vous en inspirer librement. Nous construisons également des maisons sur mesure : venez avec vos idées ou vos plans !

Ce site utilise des cookies et vous donne le contrôle sur ce que vous souhaitez activer Tout accepter Personnaliser