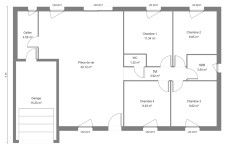
Maison 5 pièces - 4 chambres - 93,88 m2 habitables

Erica

Compacte et économique, la maison Erica s’adapte à tous les terrains. Cette maison neuve de plain-pied, avec garage intégré, a beaucoup d’atouts pour séduire de jeunes ménages et les investisseurs locatifs. Un grand salon - séjour - cuisine de 41 m², trois chambres et une salle de bains. Vous pouvez personnaliser les plans avec votre conseiller Maisons Lelièvre et choisir, par exemple, de supprimer une chambre pour agrandir l’espace de vie commun. De base, les plans de cette maison se déclinent en version 3 ou 4 chambres et même avec suite parentale incluant une salle-de-bain privative et dressing. Côté énergie, vous pouvez opter pour un chauffage au gaz, par aérothermie ou encore choisir le poêle à pellet.

Principales caractéristiques de cette maison neuve
  • Surface habitable : 93,88 m2
  • Rez-de-chaussée : 93,88 m2
  • Combles perdus
  • Emprise au sol : 127,01 m2
  • Maison de plain-pied
  • Nombre de pièces : 5
  • Chambres : 4
  • Garage : 15,25 m2
  • SdB / SdE : 1
  • WC : 1
  • Toits 2 pentes
  • Architecture classique
  • Enduit 2 teintes au choix
  • Box domotique Tahoma
10 bonnes raisons de construire avec nous

Principes constructifs, équipes, éco-matériaux, finitions soignées, SAV et garanties de résultats, tout ne se vaut pas !

Plan de maison neuve et procédé constructif conformes à la RE 2020.

Toutes nos maisons neuves sont contrôlées en fin de chantier par un organisme accrédité COFRAC qui délivre une attestation thermique et un DPE certifié.

Plans personnalisables et maisons sur mesure

Parce que vous n’avez pas tous les mêmes besoins, ni les mêmes goûts, tous les plans de nos maisons sont modifiables. Vous pouvez choisir de les construire tels quels ou de vous en inspirer librement. Nous construisons également des maisons sur mesure : venez avec vos idées ou vos plans !

Ce site utilise des cookies et vous donne le contrôle sur ce que vous souhaitez activer Tout accepter Personnaliser