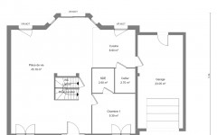
Cette maison neuve de style tradition joue la symétrie avec élégance, son pignon central est flanqué de 2 baies vitrées, elles-mêmes surmontées de deux fenêtres de toit jumelles et à fronton triangulaire. Deux ouvertures en demi-lune, une côté jardin et l’autre côté cour, s’inscrivent dans la même logique symétrique de l’architecture. Un bow-window, largement ouvert sur le jardin et idéal pour les amoureux des plantes vertes, vient apporter un charme particulier à la pièce de vie principale. Les dimensions de l’espace de vie sont généreuses, 54 m² au total, s’y ajoute un cellier attenant pour les rangements et une chambre disposant d’une salle de bain privative. Notez que l’escalier qui dessert l’étage de la maison dissimule habillement les WC du rez-de-chaussée. À l’étage quatre chambres et un pallier qui pourra servir d’espace multimédia. Des combles aménageables, tout de suite ou plus tard, surplombent le garage accolé. De quoi imaginer à terme une chambre supplémentaire, un espace de stockage ou, pourquoi pas, un petit studio indépendant. C’est vous bien-sûr qui choisissez les teintes des enduits, les matériaux de la couverture et même le style de votre escalier, les plans sont également entièrement modifiables.
L’AVEZ VOUS NOTÉ ?
Combles aménageables de près de 17 m²
Bow-window
Espaces dans les chambres prévus pour intégrer des placards
 
                             
									 
									 
									 
									 
									 
									 
									 
									 
									 
									 
									 
									 
									 
									 
										 
										 
											