Maison 6 pièces - 5 chambres - 150,02 m2 habitables

Dahlia

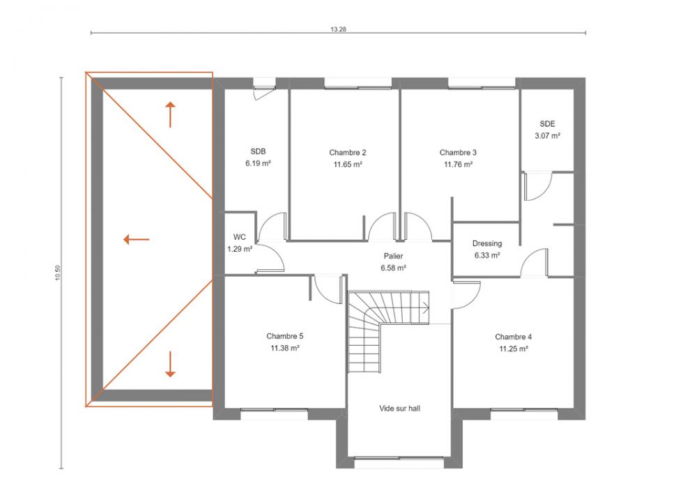
Surface vitrée exceptionnelle, originalité de sa toiture à pentes multiples, 150 m² habitables, 5 chambres et un garage, cette maison a plus d’un atout pour séduire les amateurs de beaux espaces. Notez le garage prévu pour 2 voitures, pourvu à la fois d’un accès cellier et d’un accès direct au jardin. Le plan de cette maison inclut également un grand vide sur hall dans l’entrée : le plafond monte à près de 5 mètres. Les coffres de volets électriques sont, bien-sûr, comme sur toutes nos maisons, invisibles. Ils sont programmables grâce au pack domotique TaHoma qui est inclus de base sur tous nos modèles Premium. Nous tenons notre promesse énergie positive même en cas d’exposition défavorable !

Principales caractéristiques de cette maison neuve
  • Surface habitable : 150,02 m2
  • Rez-de-chaussée : 80,38 m2
  • Étage : 69,64 m2
  • Combles perdus
  • Emprise au sol : 124,96 m2
  • Maison avec étage
  • Nombre de pièces : 6
  • Chambres : 5
  • Garage : 25,44 m2
  • SdB / SdE : 3
  • WC : 2
  • Toits 4 pentes
  • Architecture classique
  • Enduit 2 teintes au choix
  • Box domotique Tahoma
10 bonnes raisons de construire avec nous

Principes constructifs, équipes, éco-matériaux, finitions soignées, SAV et garanties de résultats, tout ne se vaut pas !

Plan de maison neuve et procédé constructif conformes à la RE 2020.

Toutes nos maisons neuves sont contrôlées en fin de chantier par un organisme accrédité COFRAC qui délivre une attestation thermique et un DPE certifié.

Plans personnalisables et maisons sur mesure

Parce que vous n’avez pas tous les mêmes besoins, ni les mêmes goûts, tous les plans de nos maisons sont modifiables. Vous pouvez choisir de les construire tels quels ou de vous en inspirer librement. Nous construisons également des maisons sur mesure : venez avec vos idées ou vos plans !

Ce site utilise des cookies et vous donne le contrôle sur ce que vous souhaitez activer Tout accepter Personnaliser